Обзор
Характеристики
Видеобзоры
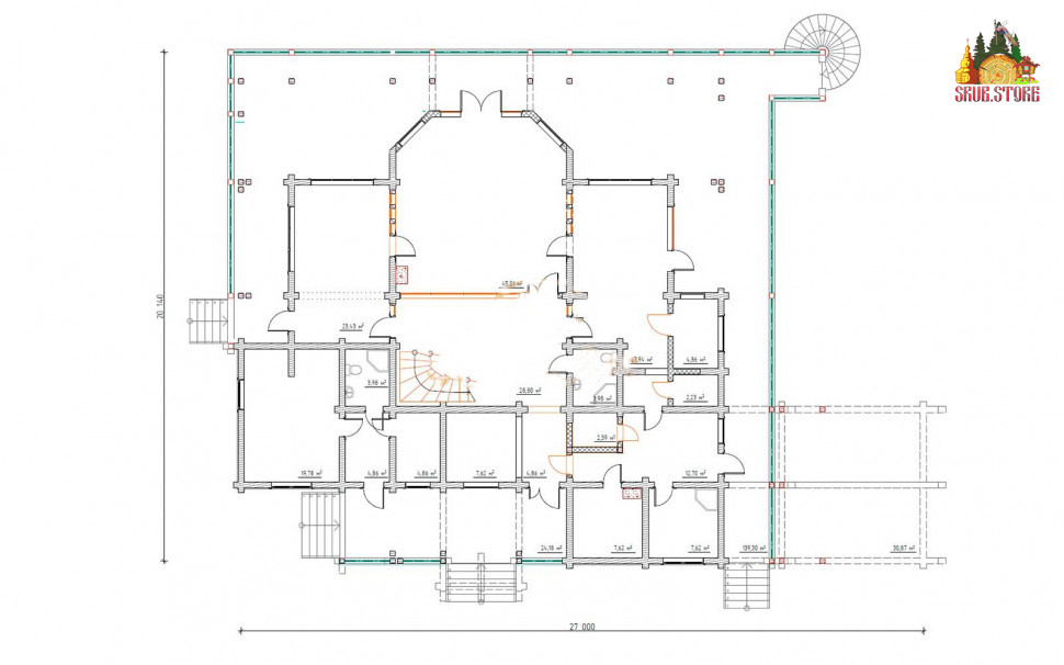
Проект двухэтажного здания яхт клуба с цоколем 27 на 20 м - первый этаж, и 20 на 20.6 - второй, общая площадь 1400 м2. Основной материал – клееный брус. Проект подойдёт, как для яхт клуба премиум уровня, так и для гостиничного комплекса с комфортными номерами и просторными помещениями ресторана, бильярдной и спа зоны.
Базовая комплектация и материалы
Проект
Общие данные, фасады, поэтажные планы, экспликация помещений, план фундамента
Перспектива сруба, развертки по стенам, план перекрытий, план стропил, план раскладки подкладной доски, экспликация полов, спецификация оконных и дверных проемов, план кровли, конструктивные узлы.
Фундамент
- разбивка осей фундамента на строительной площадке.
- выемка плодородного грунта под пятно застройки. (трактор 2 смены) 400мм
- установка закладных под канализацию, электрику и воду.
- вода от нулевой отметки -1600 мм
- электрика от нулевой отметки -600 мм
- канализация от нулевой отметки -800 мм
- укладка геотекстиля.
- песчаная утрамбованная подушка 200мм
- утрамбованная подушка из щебня (фракция 20/50)
- устройство опалубки (доска/фанера с ребрами жесткости)
- двойное армирование ростверка с ячейками 200*200 мм
- усиленное армирование в угловых соединениях
- вязка арматуры на проволоку
- укладка технической пленки на песок
- изоляция между бетоном и песком
- заливка бетона марки В20 (М300).
- вибрация бетона глубинным вибратором
- выравнивание бетона правилом
- демонтаж опалубки
- обмазочная гидроизоляция
- праймер битумный
- расходные материалы
Нулевой цикл:
- подкладная доска 50х200 мм
- гидроизоляция под подкладную доску/брус в один слой
- крепеж подкладной доски (анкера)
- антисептирование
Комплект стен
Включает в себя клееный брус, в который входят:
- брус клееный сосна: толщиной 200 мм * 212 высота.
- конструкционные элементы клееные (столбы, балки), в зависимости от проекта.
- анкера регулировочные (для столбов, если есть в проекте)
- элементы стяжки для венцов (шпильки, гайки, шайбы)
- нагеля, дополнительный комплект крепежа для сборки
Перекрытия
Включает в себя конструктив, в который входят:
- половые лаги, доска сечением 50х200 мм
- лаги на балконы, доска сечением 50х200 мм (если есть в проекте)
- крепеж лаг
Кровля
Включает в себя стропильную систему, в которую входят:
- стропильные ноги доска сечением 50х200 мм
- обрешетка брусок сечением 50х50 мм
- контробрешетка брусок сечением 50х50 мм
- монтаж стропильной системы
- крепеж стропильной системы
- антисептирование
- паро-гидро изоляцию с двух сторон
- утеплитель базальтовый толщиной 200 мм
- кровля из металлочерепицы.
Окна и двери
1) Двери, в которые входят:
- входная металлическая
- обсада дверей
- отделка дверей, доборы, наличники
2) Окна, в которые входят:
- окна ПВХ (Стандарт) двухкамерные (открывание не более одной створки на одно изделие)
- обсада окон
- отделка окон внешняя (наружные наличники сухая строганная доска)
- Этажность:2
- Длина:27 м
- Ширина:20.1 м
- Фундамент:монолитная Ж\Блента 0,3х0,4 м
- Площадь:1400 кв. м.
- Основной материал строения:Клееный брус
Заявка на расчет стоимости
Проект постройки может быть дополнен или изменен по вашему желанию. Заполните заявку на расчет стоимости.
ЗаказатьДобавить в проект
- Гараж
- Террасу
- Крыльцо
- Балкон
- Изменить планировку
Видеобзоры построенных домов
Трудно разобраться? Не беда
Прочитайте наши статьи о технологиях строительства и используемых материалах.
Свяжитесь с нашими специалистами
По телефону +7 (499) 677-52-28
Или закажите обратный звонок




















































































