Дома из бревна 8 на 8 м
Дома из бревна 8 на 8 относятся к моделям среднего размера и пользуются высоким спросом. Такие коттеджи эффектно выглядят, быстро строятся, доступны по цене и при этом демонстрируют полноценный функционал, характерный для загородной недвижимости.
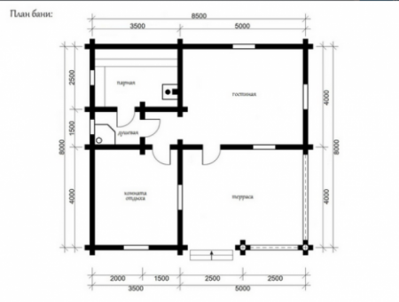
Строительство домов из бревна 8 на 8
Возведение дома начинается с выбора проекта и подготовки материала. Непосредственно сруб делается на производственном участке, а сборка дома происходит на объекте заказчика, куда домокомплект доставляется после маркировки и упаковки. А насколько быстро будут выполнены монтажные работы, зависит от:
- своевременной готовности фундамента;
- сложности проекта (наличие балкона, террасы, гаража);
- особенностей планировки дома 8 на 8 из бревна (второй свет, эркер, внутренние перегородки);
- назначения постройки (дача или постоянное проживание).
Преимущества домов из бревна 8 на 8 м2
Как и у других компактных объектов, у домов размером 8 на 8 метров много преимуществ:
- Такие постройки могут использоваться в качестве дач для сезонного отдыха или как дома для круглогодичного проживания.
- Они не занимают много места и могут быть построены на маленьком садовом участке.
- Для возведения полноценного дома потребуется небольшой бюджет, что делает такие объекты идеальными для молодых пар, которые не могут позволить себе просторный коттедж.
- Бревенчатый дом не нуждается в дополнительной отделке, и при правильном подходе к строительству не будет требовать частого ремонта.
Важно! Для постоянного проживания лучше выбрать двухэтажный дом 8 на 8 , а для дачи подойдет одноэтажный коттедж в мансардой.
Дома из бревна 8 на 8 в Москве по выгодным ценам
Наша компания предлагает строительство домов из бревна 8 на 8 под ключ по выгодным ценам. Мы работаем в Москве и Московской области и выполняем весь комплекс мероприятий: от деревообработки и подготовки лесоматериала до сборки готовой конструкции на участке заказчика. Наши мастера работают быстро и слаженно, так что строительство домов по типовым проектам из нашего каталога выполняется в максимально сжатые сроки. А заказать дом у нас можно по телефону или онлайн.
























































