Обзор
Характеристики
Видеобзоры
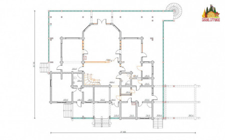
Проект двухэтажной гостиницы на 8 номеров (920 м2) из клееного бруса. Общие размеры - 18x37,5 м. Комфортные номера с всеми удобствами. Для каждого номера второго этажа предусмотрен выход на балкон. Проект может быть изменен или дополнен по вашему желанию. В качестве основного материала так же может быть использован профилированный брус или оцилиндрованное бревно.
Технические характеристики проекта:
- Общая площадь: 920 м2
- Габариты: 18x37,5 м
- Этажность: 2 этажа
- Материал: клееный брус
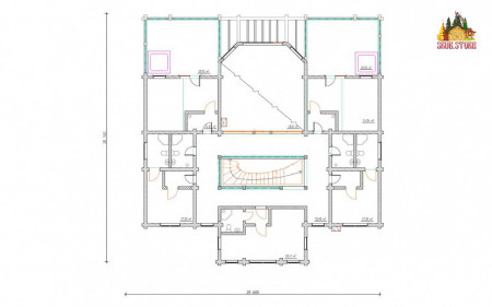
- Вестибюль: 77,44 м2
- Обеденный зал: 186,38 м2
- Зона открытой кухни: 44,94 м2
- Гардероб
- 3 санузла на 1 этаже
- VIP-зал: 21,85 м2
- 8 номеров: 24 м2 + 4,2 м2 (санузел)
- Балкон: 40,95 м2
- Второй свет Подсобные помещения (2 этаж)
- Этажность:2
- Длина:37.5 м
- Ширина:18 м
- Площадь:920 кв. м.
- Кол-во номеров:8
- Основной материал строения:Клееный брус
Заявка на расчет стоимости
Проект постройки может быть дополнен или изменен по вашему желанию. Заполните заявку на расчет стоимости.
ЗаказатьДобавить в проект
- Гараж
- Террасу
- Крыльцо
- Балкон
- Изменить планировку
Видеобзоры построенных домов
Трудно разобраться? Не беда
Прочитайте наши статьи о технологиях строительства и используемых материалах.
Свяжитесь с нашими специалистами
По телефону +7 (499) 677-52-28
Или закажите обратный звонок























































































