Обзор
Характеристики
Видеобзоры
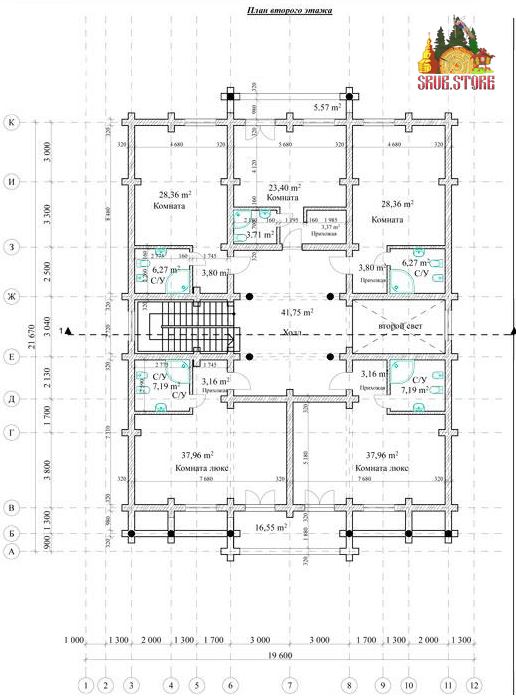
Прочный и долговечный сруб гостиницы на 10 номеров имеет большую площадь – 698 кв. м. Планировка включает административную инфраструктуру и комнаты различного уровня комфорта. Отличающиеся размером номера позволяют обустраивать для гостей стандартные варианты размещения и VIP-зоны.
Сруб является экологичным и универсальным решением, которое не нарушает ландшафт лесной или гористой местности. Бревенчатая конструкция обеспечивает минимальные потери тепла, эффективную шумоизоляцию в номерах. Строительство мини-отеля осуществляется в короткие сроки с использованием современных технологий. Детали планировки могут изменяться по желанию заказчика.
- Этажность:2
- Длина:21.7 м
- Ширина:19.6 м
- Площадь:698 кв. м.
- Кол-во номеров:10
- Диаметр:24-26 см
- Основной материал строения:Бревно ручной рубки
Заявка на расчет стоимости
Проект постройки может быть дополнен или изменен по вашему желанию. Заполните заявку на расчет стоимости.
ЗаказатьДобавить в проект
- Гараж
- Террасу
- Крыльцо
- Балкон
- Изменить планировку
Видеобзоры построенных домов
Трудно разобраться? Не беда
Прочитайте наши статьи о технологиях строительства и используемых материалах.
Свяжитесь с нашими специалистами
По телефону +7 (499) 677-52-28
Или закажите обратный звонок





















































































