Обзор
Характеристики
Видеобзоры
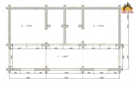
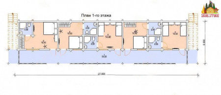
Стильно выглядящий двухэтажный сруб гостиницы 1040 кв. м, на 40 номеров позволяет организовать максимально комфортный отдых гостей на природе. В проекте такого загородного отеля предусмотрено наличие всех необходимых помещений для размещения и обслуживания отдыхающих. Капитальное строение из экологически чистого натурального дерева обеспечит надежную защиту от холода и непогоды вне зависимости от сезона. Такой отель непременно станет главной достопримечательностью района, центром притяжения жителей окрестностей и приезжих путешественников. По желанию заказчика, размеры, планировки и экстерьер типового проекта гостиничного комплекса могут быть изменены.
- Этажность:2
- Ширина:12.7 м
- Длина:40.5 м
- Площадь:1040 кв. м.
- Кол-во номеров:35-40
Заявка на расчет стоимости
Проект постройки может быть дополнен или изменен по вашему желанию. Заполните заявку на расчет стоимости.
ЗаказатьДобавить в проект
- Гараж
- Террасу
- Крыльцо
- Балкон
- Изменить планировку
Видеобзоры построенных домов
Трудно разобраться? Не беда
Прочитайте наши статьи о технологиях строительства и используемых материалах.
Свяжитесь с нашими специалистами
По телефону +7 (499) 677-52-28
Или закажите обратный звонок



























































































