Срубы с мансардой
Срубы с мансардой относятся к категории наиболее востребованных в деревянном домостроении. И это неудивительно, ведь мансарда значительно расширяет функционал постройки и позволяет использовать дополнительные квадратные метры максимально эффективно. Да и дом с мансардой выглядит гораздо интересней и дороже одноэтажного.
Что такое мансарда?
Мансарда – это дополнительный полуэтаж, который располагается под скатом кровли и может служить для обустройства помещений различного назначения. В мансарде можно оборудовать:
- тренажерный зал и место для занятий йогой;
- лаунж-зону для семейного отдыха с удобной мягкой мебелью – идеальным вариантом будет бескаркасный набор, а если выбор будет сделан в пользу традиционного комплекта, то лучше приобрести диван и кресла с низкими спинками;
- гостевую спальню – в этом случае кровать есть смысл разместить так, чтобы изголовье было под скатом кровли, где самая маленькая высота;
- бильярдную – игровой стол в таком помещении лучше ставить в самом высоком месте, под конек крыши;
- рабочий кабинет – стол органичней всего будет смотреться у торцевого или светового окна, где достаточно естественного света;
- игровую комнату для детей.
Преимущества мансарды
- Срубы с мансардой смотрятся более внушительно и презентабельно, чем одноэтажные, а стоят не намного дороже.
- Мансарда расширяет функционал бани или дома благодаря возможности оборудования под крышей дополнительного помещения.
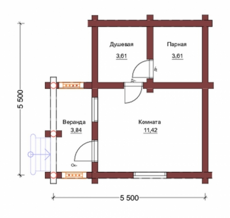
- Из-за полуэтажа полезная площадь бани увеличивается примерно на 40 %, при этом пятно застройки остается тем же. Это важно для небольших участков, где каждый метр на счету.
- Наличие воздушной прослойки между первым этажом и кровлей сокращает теплопотери на 30 %, делая постройку энергоэффективной.
Проекты и размеры срубов с мансардой
Существует множество типовых проектов срубов с мансардой, которые отличаются и площадью, и планировкой, так что найти подходящую модель не составит труда. А самыми востребованными являются:
- срубы небольшого размера 6х4 и 6х6 с мансардой – они могут выполнять функцию бани или гостевого дома;
- дома из сруба размером 8х8, где мансарда достаточно просторная, – такой вариант актуален в качестве дома-бани для сезонного проживания.
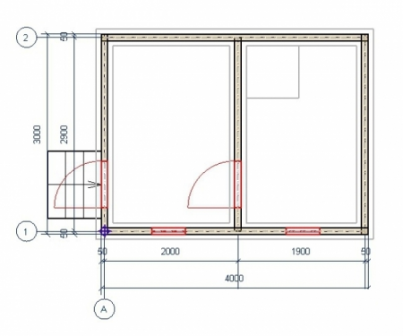
Важно! Мансардный полуэтаж может быть как симметричным, так и асимметричным – все зависит от планировки сруба.
Цена сруба с мансардой
Цены на срубы из бревна с мансардой зависят от размеров постройки, сложности проекта и планировки. В ассортименте нашей компании есть недорогие типовые дома из сруба с мансардой. А если вы не найдете в каталоге подходящую модель, мы можем изготовить сруб на заказ по спецпроекту.
Срубы с мансардой под ключ в Москве
Наша компания предлагает срубы из высококачественного дерева с мансардой в Москве по доступным ценам. Мы выполняем весь спектр производственных и монтажных работ, реализуя срубы под ключ, и выполняем сервисное обслуживание приобретенных у нас домов и бань. Получить полную информацию об услугах можно через онлайн-чат, а оформить заказ – по телефону.






















































![Дом с мансардой Д-003 [105 кв.м]](/wa-data/public/shop/products/20/08/820/images/3099/3099.450.jpg)
![Дом с мансардой Д-003 [105 кв.м]](/wa-data/public/shop/products/20/08/820/images/3100/3100.450.jpg)
![Дом с мансардой Д-003 [105 кв.м]](/wa-data/public/shop/products/20/08/820/images/3101/3101.450.jpg)
















































