Дома по технологии «двойной брус»
В последнее время резко вырос спрос на дома из двойного бруса. Такие постройки дешевле традиционных деревянных домов, но не уступают им ни в плане эстетики, ни по эксплуатационным характеристикам. Немаловажно и то, что стройка займет не больше четырех месяцев, так что купить дом из двойного бруса – отличная идея для тех, кто хочет как можно быстрей стать хозяином модной загородной недвижимости.
Что такое «двойной брус»?
«Двойной брус» – современная технология, применяемая в малоэтажном строительстве и предполагающая создание двойного контура стен с дополнительным утеплением. Его образует внутренняя и наружная «оболочка» из бруса и установленные между ними плиты минеральной ваты.
Преимущества и недостатки технологии «двойной брус»
Как и у любой другой технологии, у «двойного бруса» есть преимущества и недостатки. Главный плюс – улучшенные тепло- и звукоизоляционные характеристики. Они обусловлены наличием утеплителя в стенах, так что постройка получается энергоэффективной. Кроме того:
- дома из двойного бруса получаются не только экологичными, но и легкими и не нуждаются в серьезной опоре, что позволяет сэкономить на устройстве фундамента;
- при строительстве дома из двойного бруса нет необходимости в дополнительном утеплении – листы минеральной ваты между внутренним и наружным контуром стен отлично справляются с этой задачей;
- благодаря презентабельному виду строительного материала можно обойтись без отделки и просто обработать фасад антисептической пропиткой.
Что же касается недостатков технологии дома «двойной брус», то тут стоит отметить несколько моментов:
- она оптимальна для одноэтажных зданий, поскольку при возведении более масштабных построек велик риск нарушения геометрии конструкции;
- технология не подходит для самостоятельного строительства ввиду сложности устройства угловых соединений – правильно реализовать даже самый простой проект могут только профессионалы;
- из-за разной влажности древесины внешний и внутренний контур стен «садятся» по-разному, что может привести к деформации и появлению в стенах продольных трещин.
Важно! Чтобы минимизировать риски при усадке, во время сборки дома «классический угол» часто меняют на соединение «ласточкин хвост». Такое решение позволит избежать перекоса конструкции и растрескивания стен. При этом эстетика фасада не пострадает.
Особенности строительства домов из двойного бруса
- Любое строительство начинается с проекта, который может быть типовым или индивидуальным. Стандартные дома по типовым проектам возводятся быстрее и стоят дешевле. А за индивидуальный проект придется доплатить.
- Весь цикл строительства дома занимает не более четырех месяцев, а потом можно сразу приступать к отделке.
- Дома из двойного бруса не требуют конопатки и выполнения других дополнительных работ, необходимых при сборке классических срубов, что удешевляет строительство. А жить в них можно сразу после окончания отделки.
Стоимость дома из двойного бруса
Цена домов из двойного бруса зависит от площади и сложности проекта. При расчете учитывается тариф за кубометр, а дешевле всего стоят небольшие дома из двойного бруса, возведенные по типовым проектам.
На srub.store указаны цены на типовые дома из двойного бруса различной площади. Если же вас интересует стоимость нестандартной постройки, то ее можно рассчитать при помощи калькулятора.
Строительство домов из двойного бруса в Москве
Наша компания специализируется на строительстве деревянных домов в Москве и Московской области и предлагает дома из двойного клееного бруса по лучшим ценам в столичном регионе.
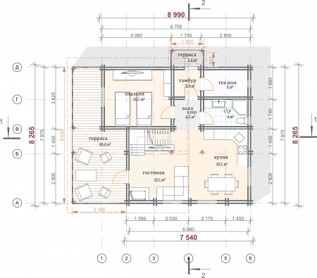
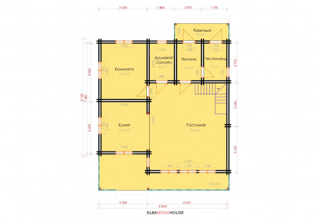
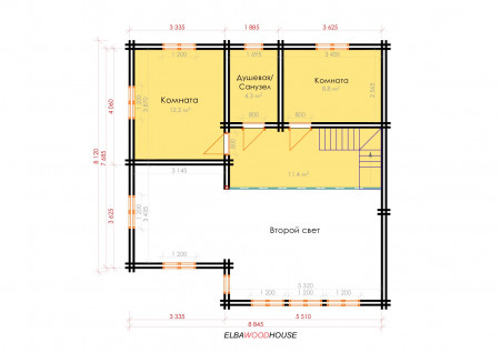
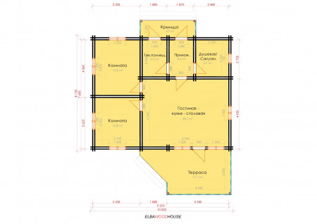
У нас в каталоге представлены актуальные проекты домов из двойного бруса с размерами и ценами, так что найти подходящий вариант коттеджа не составит труда. Получить консультацию и задать любые вопросы по технологии и срокам реализации проектов можно через онлайн-чат.

























































































