Проекты домов из бревна с террасой
Дома из бревна с террасой – популярный формат дачной недвижимости. Красивые и удобные, они относятся к объектам с расширенным функционалом, но при этом доступны по цене. В таком доме можно провести выходные или летний отпуск, но подходит он и для круглогодичного проживания. Тем более что в линейке проектов есть модели разной площади и этажности.
Достоинства дома с террасой
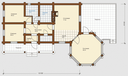
Главным достоинством деревянного дома с террасой является его планировка и наличие удобного места для отдыха на свежем воздухе. Открытая терраса с эргономичной покатой кровлей серьезно расширяет функционал постройки, ведь на ней можно разместить:
- летнюю столовую с мини-кухней;
- зону барбекю с баром;
- уютный лаунж с плетеной дачной мебелью и гамаком;
- детскую игровую.
Кроме того, дома из бревна с террасой, как и другие деревянные объекты, являются:
- Экологичными – в них всегда комфортный микроклимат и оптимальная влажность.
- Практичными – бревенчатый дом не требует постоянного ухода и с каждым годом становится крепче и эффектней.
- Долговечными – срок их эксплуатации составляет минимум 80 лет.
- Фитонциды, содержащиеся в древесине хвойных пород, из которой обычно строятся такие объекты, обеззараживают воздух и положительно влияют на здоровье.
- Привлекательными с эстетической точки зрения – бревенчатые срубы органично вписываются в ландшафт и радуют глаз.
Важно! Открытую террасу можно дополнить сдвижным остеклением, которое будет защищать ее от ветра и осадков.
Выбор проекта
При выборе проекта загородного дома из бревна с террасой специалисты рекомендуют исходить из того:
- сколько человек будут одновременно пользоваться домом – если требуется дачный коттедж для летнего отдыха пары с одним или двумя детьми, лучше выбрать компактную одноэтажную модель, а для большой семьи идеальным решением будет просторный двухэтажный дом из бревна с террасой, в котором три или четыре спальни;
- в каком режиме будет эксплуатироваться объект – актуальным дачным вариантом можно назвать одноэтажный домик из бревна с маленькой террасой на входе, а для постоянного проживания больше подойдет дом со вторым светом, мансардой, балконом и большой боковой террасой или галереей по периметру здания;
- какой стиль ближе хозяевам будущего дома – в линейке большинства компаний, занимающихся деревянным домостроением, есть проекты домов из бревна с террасой в стиле рустик, шале, модерн, также высоким спросом пользуются современные модели с высокими окнами в пол, вторым светом и необычным декором.
Важно! При необходимости в типовой проект могут быть внесены незначительные изменения. Это позволит заказчику получить на 100 % соответствующий его запросам дом и сэкономить на разработке индивидуального проекта.
Дома из бревна с террасой: как заказать в Москве?
Наша компания специализируется на возведении в Москве домов из бревна и бруса по типовым и индивидуальным проектам. В каталоге на srub.store представлены актуальные модели домов с террасой, среди которых есть как компактные одноэтажные, так и просторные двухэтажные объекты. Изучить технические характеристики конкретной модели можно в карточке товара, а оформить заказ – онлайн или по телефону.





































































































