Бани из оцилиндрованного бревна
Бани из оцилиндрованного бревна особо ценятся любителями традиционных русских банных процедур. Красивые и экологичные, они пользуются стабильно высоким спросом и радуют своих хозяев легким паром в течение долгих лет.
Особенности бани из оцилиндрованного бревна
Строительство бани из оцилиндрованного бревна начинается с заготовки северной древесины хвойных пород, из которой потом на производственной площадке изготавливаются лесоматериалы диаметром 18-32 см. В результате получается высококачественное оцилиндрованное бревно без верхнего влажного слоя (его еще называют «заболонь»), наиболее подверженный растрескиванию и гниению. Качественное оцилиндрованное бревно обеспечивает бане:
- Оптимальный микроклимат, который устанавливается в помещении благодаря способности дерева «дышать» и эффективно регулировать уровень влажности.
- Эстетичный внешний вид – идеально круглая форма бревен придает постройке визуальную аккуратность и узнаваемый русский колорит.
- Отличные теплотехнические характеристики – благодаря обработке стволов на станке бревна можно подогнать максимально близко друг к другу, что позволит снизить теплопотери. А пазы заводского распила облегчают монтаж и позволяют значительно сократить время выполнения работ по сборке сруба.
- Низкая теплопроводность – правильно проконопаченная бревенчатая баня быстро нагревается и долго остывает, так что комфорт при ее эксплуатации гарантирован.
- Экологичность – натуральная древесина сосны, лиственницы и ели, из которых делают оцилиндрованное бревно, богата фитонцидами, что благотворно влияет на здоровье.
- Долговечность – бани из оцилиндрованного бревна служат в течение нескольких десятилетий и не требуют постоянного ухода.
Важно! Чтобы защитить оцилиндрованное бревно от заражения грибками, гниения и негативного воздействия окружающей среды, материал нужно тщательно обработать антисептиком для дерева.
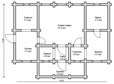
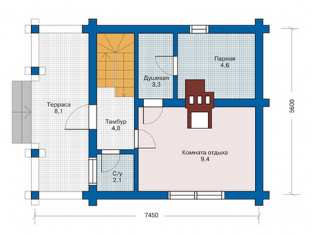
Размер бани
Бревенчатые бани бывают разного размера, а широкий ассортимент готовых объектов позволяет любому покупателю подобрать вариант подходящий и по площади, и по цене. Наиболее востребованными являются бани из оцилиндрованного бревна размером:
- 6х4;
- 6х6;
- 6х8.
Они недорогие, занимают весьма скромную площадь, но при этом способны обеспечить пользователям необходимый комфорт.
Сколько стоит баня из оцилиндрованного бревна?
Цена на бани из оцилиндрованного бревна напрямую зависят от размера сруба и сложности проекта. Поэтому, желающие сэкономить выбирают готовые стандартные модели площадью до 12 кв.м, созданные по типовым проектам. А вот строительство просторной бани из оцилиндрованного бревна по индивидуальному заказу потребует серьезных расходов.
Бани из оцилиндрованного бревна в Москве
Наша компания выполняет весь комплекс работ по строительству бревенчатых бань: от замеров и проектирования до сборки и отделки. У нас можно купить готовую баню из оцилиндрованного бревна, а также заказать банный комплект по типовому или индивидуальному проекту.
Чтобы получить консультацию по выбору модели бани, свяжитесь с нашим специалистом через онлайн-чат. А для изучения ассортимента готовых срубов и ознакомления с проектами бань из оцилиндрованного бревна загляните в каталоге на srub.store.









































































































