Обзор
Характеристики
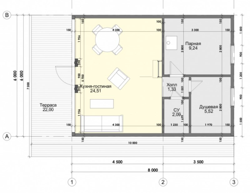
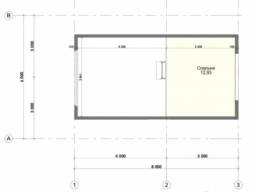
Проект треугольной двухэтажно бани в стиле А-фрейм, размеры 6 на 8 м без террасы, терраса 6х2, 12 м2. В первом этажа расположены кухня-гостиная 24,5 м2, санузел 2 м2, душевая 5,5 м2 и парилка 9,2 м2. На втором (антресольном) этаже – спальная комната 13 м2, второй свет. Фасад под панорамное остекление на всю площадь стены. Наружный каркас 15 см. толщиной, с утеплителем и пароизоляцией, что позволяет использовать баню круглый год. Благодаря размерам и конструкции проект может быть не только баней. но гостевым, дачным или туристическим домом.
Базовая комплектация
Фундамент
(Не входит в стоимость, обсчитывается отдельно), свайно-винтовой или ленточный.
Каркас и стены
Вентилируемый фасад, паро- и гидроизоляция. Монтаж силового каркаса производится по технологии перекрестного утепления гарантирует повышенную звукоизоляцию и отсутствие «мостиков холода».
Наружная и внутренняя отделка
Под внешней обшивкой монтируется контробрешетка из бруска для вентиляции фасада. На цоколь и окна устанавливаются крашеные оцинкованные отливы. При желании возможна замена материалов внешней и внутренней отделки на любые другие по желанию заказчика.
Окна
Пластиковые окна c 2-м стеклопакетом и поворотно-откидной фурнитурой. В комплект также входят: ПВХ подоконники шириной 200 мм, москитные сетки и оцинкованные отливы.
Двери
Входная дверь под стекло. Дверь в парное отделение – жаропрочное стекло. В помещения - дерево.
Кровля
Металлочерепица из нержавеющей стали толщиной 0,4 мм. Карнизы кровли подшиваются перфорированными панелями. Водосточная система не допускает контакта с осадками, а снегозадержатели не допускают образования сугробов вокруг строения.
Отделка
Стены первого и второго этажей отделываются сухой обшивочной евровагонкой.
Напольное покрытие - шпунтованная деревянная доска толщиной 27 мм служит идеальным покрытием для пола.
Парное отделение – вагонка из липы.
Печь и комплектующие
Печь в стоимость не входит, рассчитывается индивидуально.
- Площадь:55
- Этажность:1,5
- Материал:Каркасный
- Ширина:6 м
- Фундамент:Свайный
- Длина:8 м
Заявка на расчет стоимости
Проект постройки может быть дополнен или изменен по вашему желанию. Заполните заявку на расчет стоимости.
ЗаказатьДобавить в проект
- Гараж
- Террасу
- Крыльцо
- Балкон
- Изменить планировку
Видеобзоры построенных домов
Трудно разобраться? Не беда
Прочитайте наши статьи о технологиях строительства и используемых материалах.
Свяжитесь с нашими специалистами
По телефону +7 (499) 677-52-28
Или закажите обратный звонок












































































