Обзор
Характеристики
Видеобзоры
О большом и уютном загородном доме мечтает наверное каждый человек. Но реализация масштабного проектного решения требует серьёзных капиталовложений. Поэтому мы разработали компромиссный вариант загородного сруба из оцилиндрованного бревна с мансардным этажом по доступной цене. Постройка имеет размеры 7х7 метров.
Общая площадь такого дома – 89 кв. м. Далеко не каждый россиянин может похвастаться квартирой аналогичной площади.
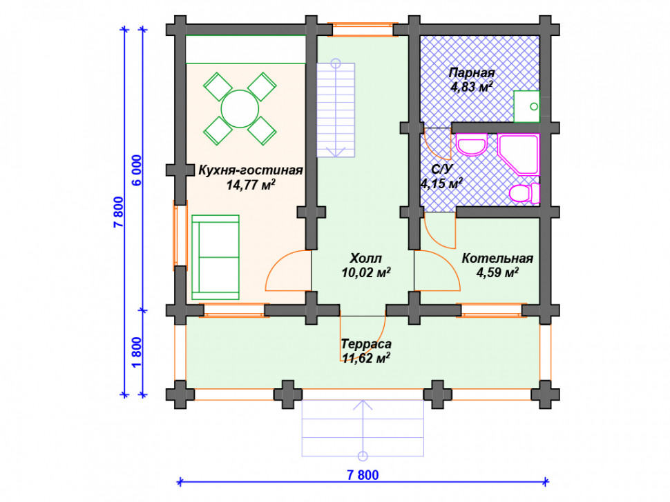
При этом в доме есть все необходимое для проживания для семьи с одним ребенком или двумя однополыми детьми. На первом этаже имеется холл, санузел, кухня совмещенная со столовой и гостиной, а также парная, которую по желанию можно переделать под кладовую или гардероб. Имеется также котельная, что особенно важно, если дом предназначен для круглогодичного проживания.
На первом этаже также есть большая терраса. Ее по желанию можно застеклить, превратив, например, в ту же кухню или столовую. Особенно, пожалуй, это актуально, если дом используется и для зимнего проживания тоже.
Второе этаж, в свою очередь, включает две спальные комнаты – для родителей и детей (или ребенка), а также большой холл, в котором можно устроить библиотеку, а также оборудовать место для чтения. В обеих комнатах – мансардные окна, благодаря которым дом не только хорошо освещен, но и обеспечивается необходимый по нормативам и правилам уровень инсоляции. К слову, для южной зоны, где расположен Краснодарский край, нормативная продолжительность инсоляции не должна быть менее полутора часов. А для северной зоны и того больше – не менее двух часов и тридцати минут.
Мы строим этот дом как на основе каркасной технологии, так и их бревен диаметром от 160 (для летних домиков и дач) до 280 мм (для полноценных домов, в которых можно жить весь год, причем не только на юге России). Цена начинается от 1 846 000 рублей.
СТРОИТЕЛЬСТВО ПОД ЧИСТОВУЮ ОТДЕЛКУ
В стоимость строительства под чистовую отделку включено:
ДОКУМЕНТЫ:
- Проект сруба.
- Разбревновка.
- Договор на строительство с гарантией.
РАБОТЫ:
- Монтаж стенового комплекта.
- Обработка антисептиком.
- Монтаж кровли.
- Монтаж пола и потолка.
- Монтаж межэтажных перекрытий.
- Монтаж окон, дверей (входных и межкомнатных), лестницы.
- Окосячка (Обсада), обналичка.
СТЕНОВОЙ КОМПЛЕКТ:
- Стены (сруб, межвенцовый утеплитель - джут, крепеж бревен - нагель).
- Лаги пола, балки межэтажные (50х150, 50х200 мм).
- Балки потолочные (50х150 мм).
- Стропила (50х150 мм).
- Обрешетка крыши (25х100 мм с шагом 3\1).
- Гидроизоляция крыши.
- Направляющие окосячки оконных и дверных проемов (брусок 50х50 мм).
- Конструкция пола (нижняя подшивка, гидроизоляция, утепление 10 см, пароизоляция, черновой пол – фанера 21 мм или строганная доска толщиной 36-40 мм).
- Конструкция межэтажного перекрытия для 2-этажных конструкций (направляющие потолка 1 этажа – доска 25х100 мм с шагом 5\1, пароизоляция 2 слоя, утеплитель 10 см, черновой пол 2 этажа – фанера 21 мм или строганная доска толщиной 36-40 мм).
- Конструкция потолка (направляющие потолка – доска 25х100 мм с шагом 5\1, пароизоляция, утеплитель 10).
- Кровля (металлопрофиль МП-20, металлическая водосточная система, коньковые, ветровые, ендовые элементы).
- Свесы (металлопрофиль С-8).
- Окосячка оконных и дверных проемов (строганная доска толщиной 40 мм).
- Окна (пластик белый).
- Двери входные (металлическая, пр-во Россия).
- Двери межкомнатные (деревянные, каркасного типа).
- Наличник 90-100 мм шириной.
- Лестница (стоевые, косоуры, ступени, подступенники, ограждение, столбы строганные, перило).
!!! Доставка материалов входит в стоимость !!!
КРОВЛЯ:
- Металлопрофиль МП-20.
Поэтапное или непрерывное строительство на выбор. Часть работ или материалов Вы можете взять на себя. Поэтапная оплата. Сразу вся сумма не нужна!
- Этажность:2
- Ширина:7 м
- Длина:7 м
- кол-во спален:2
- Площадь:89 кв. м.
Заявка на расчет стоимости
Проект постройки может быть дополнен или изменен по вашему желанию. Заполните заявку на расчет стоимости.
ЗаказатьДобавить в проект
- Гараж
- Террасу
- Крыльцо
- Балкон
- Изменить планировку
Видеобзоры построенных домов
Трудно разобраться? Не беда
Прочитайте наши статьи о технологиях строительства и используемых материалах.
Свяжитесь с нашими специалистами
По телефону +7 (499) 677-52-28
Или закажите обратный звонок



















































































