Обзор
Характеристики
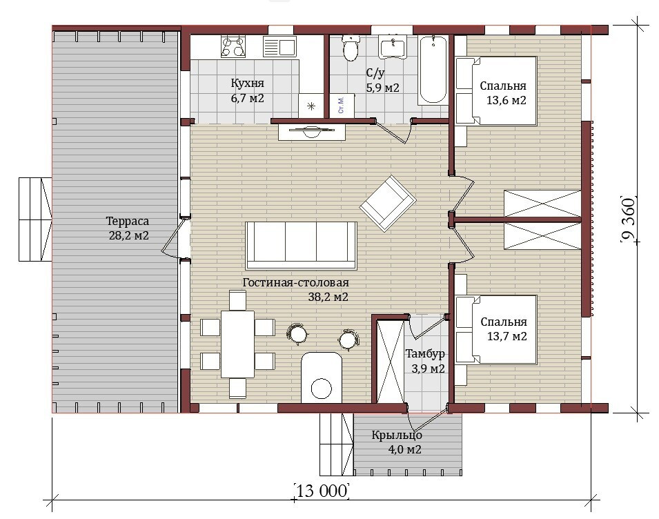
Проект одноэтажного дома в стиле «барнхаус» 13х9.3 м, площадь застройки 120 м2. Полезная площадь – 110 м2. Две спальни: 13,6 м. и 13,7 м. Гостиная – 38,2 м. Просторная открытая терраса 28 м2. Отличный вариант для круглогодичного проживания небольшой семьи или для дачи современного типа.
Комплектация
Фундамент:
- Пробное бурение.
- Геодезические работы: разбивка осей, нивелировка, привязка дома на участке
- Винтовые сваи 108*2500 мм, монтаж мини-экскаватором, с бетонированием, толщина трубы 4 мм, толщина лопасти 5 мм, оголовок 200х200 мм, средний шаг 1,5 м
Каркас:
- Обвязка свай – составной брус 150*150 мм (3 скрепленных доски 50х150 мм) по периметру дома и внутри контура
- Стойки внешних стен – 50х150 мм
- Стойки внутренних перегородок – 50х150 мм и 50х100 ммШаг стоек – 590 мм между
- Балки пола 1 этажа и межэтажного перекрытия – на основе доски 50*200 мм (одинарные, двойные или тройные – в зависимости от пролета)
- Укосины – доска 50х200 мм, впиленная в стойки внешних и внутренних несущих стен под углом, близким к 45 градусам
- Верхняя перевязка внешних и внутренних несущих стен – тройная (двойная «плашмя» плюс ригель «ребром»)
- Усиление всех оконных и дверных проемов (двойные боковые стойки, упор горизонтальных досок, хедер над проемом – если умещается по высоте)
- Материал каркаса – доска полноразмерная камерной сушки (влажность 10-12%) 1 сорт (сосна, ель)
- Антисептирование – все пиломатериалы
Утепление и пароизоляция:
- Утепление внешних стен – 150 мм
- Утепление кровли — 150 мм
- Утепление полов 1 этажа – 150 мм
- Звукоизоляция межэтажного перекрытия – 100 мм
- Звукоизоляция перегородок – 100 мм
- Пароизоляция внешних стен и потолка последнего этажа изнутри помещения – пленка «Изоспан Б» с проклейкой стыков двухсторонним скотчем
- Гидроветрозащита внешних стен – пленка «Изоспан А» ( мембрана)
- Подкровельная пленка – «Изоспан АМ» ( мембрана)
Фасад:
- Внешняя отделка стен – имитация бруса 140х14мм по вертикальным рейкам 20х40 мм (вентилируемый фасад)
- Отделка цоколя – не входит в стоимость
Кровля:
- Металлочерепица 0,45 мм
- Обрешетка крыши – доска 25х100 мм с шагом 350 мм (между 250 мм)Контробрешетка крыши – доска 50х50 мм
- Карнизы крыши – объемные (подшив имитацией бруса)
- Вынос карнизных свесов крыши за пределы стен – 500 мм в горизонтальной плоскости
- Водосточная система ПВХ на металлических крюках
- Система снегозадержания
Внутренние стены:
- Внутренняя отделка стен и потолков – не входит в стоимость
Полы:
- Черновые полы (подшив по балкам 1 этажа снизу) – доска обрезная 25 мм, сверху пленка «Изоспан А»
- Чистовые полы — не входит в стоимость
Терраса
- Полы на террасах – не входит в стоимость
- Перила на террасах – не входит в стоимость
- Опорные столбы на террасах – составной брус 150*150 мм (3 скрепленных доски 50*150 мм)
Окна:
- Окна – пластиковые белые «Rehau Blitz» (60мм, 3 камеры) с двухкамерным стеклопакетом (3 стекла) и с фурнитурой «Roto»
- Москитные сетки – на всех открывающихся створках окон
- Фиксаторы открывания окон (крокодильчики) – на всех открывающихся частях окон
- Подоконники – не входит в стоимость
Лестницы:
- Лестница межэтажная– не входит в стоимость
- Входная лестница — временное крыльцо
Двери:
- Межкомнатные двери – не входит в стоимость
- Входная дверь – стальная отечественная утепленная (2 контура уплотнения)
- Кол-во комнат:3
- Этажность:1
- Длина:13 м
- Ширина:9.3 м
- Фундамент:Винтовой
- кол-во спален:2
- Площадь:110 кв. м.
- Основной материал строения:Каркасный, пиломатериалы
Заявка на расчет стоимости
Проект постройки может быть дополнен или изменен по вашему желанию. Заполните заявку на расчет стоимости.
ЗаказатьДобавить в проект
- Гараж
- Террасу
- Крыльцо
- Балкон
- Изменить планировку
Видеобзоры построенных домов
Трудно разобраться? Не беда
Прочитайте наши статьи о технологиях строительства и используемых материалах.
Свяжитесь с нашими специалистами
По телефону +7 (499) 677-52-28
Или закажите обратный звонок




































































































