Обзор
Характеристики
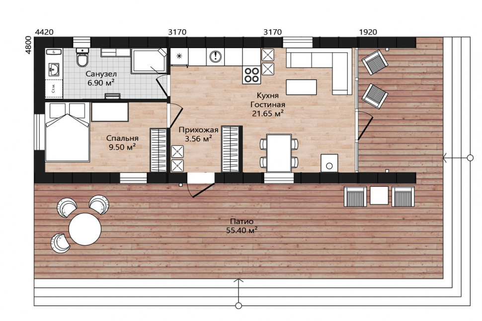
Проект одноэтажного мини дома в стиле БарнХаус, общие габаритные размеры 4,8 на 12,68 м, включая крытую террасу, плюс открытое патио 55,4 м2. Сам дом, без террасы и патио 4,8х9,5 м, 41 м2. На два входа, включает кухню-гостиную 21,65 м. кв, спальня – 9,5 м, совмещенный санузел – 6,9 м, и прихожая 3,56 м. кв. Идеальный вариант для размещения рядом с водоемом или бассейном. Может использоваться как дачный или гостевой домик. Патио с террасой достаточно просторные для отдыха большой семьи.
Наружные стены:

- Внешняя облицовка — Кликфальц.
- Обрешетка и контробрешетка.
- Гидроветрозащитная мембрана .
- Утеплитель Paroc Extra 200 мм.
- Каркас из сухой строганой доски 195×45 мм.
- ОСП 9 мм.
- Пароизоляционная мембрана.
- Обрешетка для разводки внутренних коммуникаций.
- Внутренняя отделка гладкопильной доской UYV профиля.
- Сетка для защиты от грызунов.
- Внутренние коммуникации: вода — сшитый полиэтилен, электропроводка — ВВГнГ.
Базовая комплектация:
Каркас и утеплитель
Силовой каркас — фермы из строганной сосны камерной сушки 195х45. Сетка для защиты от крыс и мышей. Антисептирование.
Утеплитель — экологически чистая каменная вата 200 мм (негорючая теплоизоляция из натурального природного камня) — безопасный для здоровья человека утеплитель.
Мембрана гидро-ветрозащитная/пароизоляция.
Герметизация нахлеста и примыкания пленки.
Внутренняя отделка
Стены и кровля:
Гладкопильная доска, Сорт АВ, Ель (маленькие сучки). Покраска укрывной краской или лессирующей пропиткой в 2 слоя.
Полы:
Шпунтованная доска 46х146 на первом этаже. Шпунтованная доска 36х121 на втором этаже. Доска со снятием фаски по длине доски. Покрывается колерованным маслом (цвет на выбор). Плинтус.
Полы в санузлах и теплом тамбуре: Ламинат с замковым соединением. Цвет на выбор.
Гидроизоляция чернового пола санузла в 3 слоя с проклейкой лентой.
Внешняя отделка
Отделка кровли и боковых стен металлопрофилем в комбинации с планкеном из лиственницы сорта AB 120х20 и 140х20. Полы террасы: террасная доска (28 мм) из лиственницы с покрытием прозрачным маслом в 2 слоя. Освещение веранды и зоны входа: Влагозащищенные диодные светильники на террасах. Влагозащищенные розетки.
Окна и стеклопакеты
Максимально энергоэффективные двухкамерные стеклопакеты: Толщина стеклопакета — 42 мм, i-напыление на внутреннее стекло, теплые пластиковые рамы. Деревянные окна, 78 мм профиль из клееного бруса. Стеклопакеты аналогичные. Покраска рам.
Двери
Входная — теплая дверь серого цвета со стоппером. Межкомнатные —межкомнатные двери белого цвета дверными коробками.
Вентиляция
Мощный до 270 м3/ч 2-х скоростной вентилятор на вытяжку. Приточные клапана в жилых помещениях.
Электрика
Скрытая проводка. Провода не распространяющие горение ВВГнГ. Пайка соединений в раздаточных коробках. Щит распределительный уличный IP66 на 45 модулей — возможна установка встраиваемого щита в доме. Использование уличного щита облегчает подключение к дому септика, уличного света, хозяйственных построек. Автоматы. 3-х фазное подключение. Розетки во всех помещениях дома. Выключатели. Светильники и бра с диодными лампочками. Трековые светильники в зоне гостиной — 2 трека по 3 метра каждый с 4 диодными светильниками на каждом. Проводка под камеры. Уличные розетки.
Водопровод и канализация
Встроенные водопроводные сети. Разводка канализации.
- Площадь:41
- Этажность:1
- Материал:Каркасный
- Фундамент:Блочный
- Длина:9.5 м
- Ширина:4.8 м
Заявка на расчет стоимости
Проект постройки может быть дополнен или изменен по вашему желанию. Заполните заявку на расчет стоимости.
ЗаказатьДобавить в проект
- Гараж
- Террасу
- Крыльцо
- Балкон
- Изменить планировку
Видеобзоры построенных домов
Трудно разобраться? Не беда
Прочитайте наши статьи о технологиях строительства и используемых материалах.
Свяжитесь с нашими специалистами
По телефону +7 (499) 677-52-28
Или закажите обратный звонок

















































































