Обзор
Характеристики
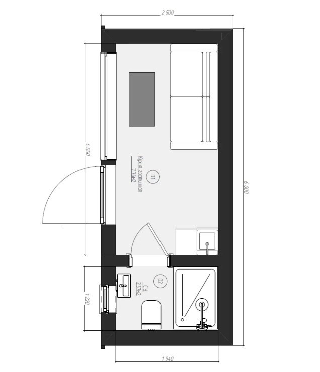
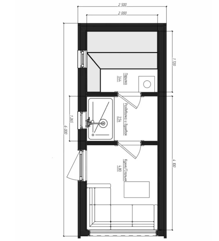
Проект миниатюрного домика в стиле БарнХаус разработан как вариант для дачи или туристического комплекса. Но также может использоваться в качестве хозблока или бани. Размеры мини БарнХауса 6 на 2 метра, полезная площадь 11 м. кв. Площадь застройки 15 м. кв.
На схемах представлено два варианта планировки: комната 7,76 м. кв. с совмещенным санузлом 2,37 м. кв, и вариант под баню: комната отдыха 4,8 м. кв. с помывочной/раздевалкой - 2,54 м. и парилка 3,44 м. По запросу возможны и другие изменения.
Каркас собирается из бруса и доски камерной сушки, толщина 15 см, с утеплителем, что позволяет использовать мини барн в зимнее время. Фундамент легкий свайный или блочный. Наружная отделка из металлопрофиля, внутренняя – имитация бруса. Варианты и цвет отделки выбирает заказчик.
- Площадь:11
- Этажность:1
- Материал:Каркасный
- Длина:6 м
- Высота:3 м
- Ширина:2 м
- Фундамент:Блочный
Заявка на расчет стоимости
Проект постройки может быть дополнен или изменен по вашему желанию. Заполните заявку на расчет стоимости.
ЗаказатьДобавить в проект
- Гараж
- Террасу
- Крыльцо
- Балкон
- Изменить планировку
Видеобзоры построенных домов
Трудно разобраться? Не беда
Прочитайте наши статьи о технологиях строительства и используемых материалах.
Свяжитесь с нашими специалистами
По телефону +7 (499) 677-52-28
Или закажите обратный звонок




















































































