Обзор
Комплектация
Характеристики
Видеобзоры
Проект большого двухэтажного A-frame дома. Габариты 27 на 11 метров, площадь 243 кв. м, 4 жилые комнаты, с гаражом.
Планировки
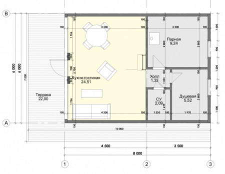
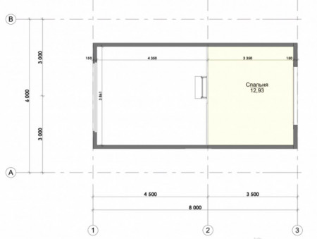
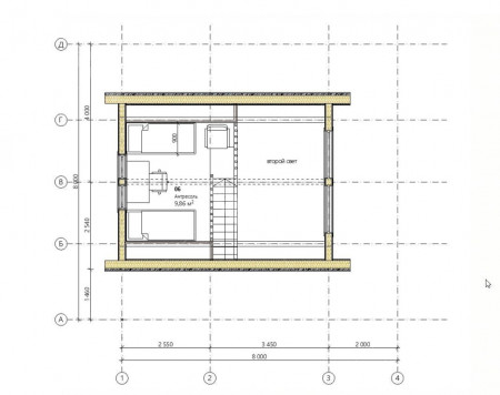
1 этаж

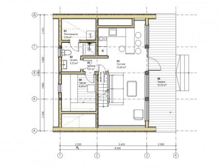
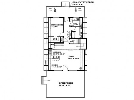
2 этаж

Большой дом в стиле A-frame 27x11 метра, 243 кв. м. На первом этаже расположены просторная гостиница-кухня, две спальные комнаты, ванная, подсобные помещения, и большой гараж на две машины. На втором этаже две комнаты и второй санузел. Перед фасадом обустроена большая открытая терраса для летнего отдыха. В тыльной части на втором этаже еще одна открытая зона для отдыха. Печка делает дом энергонезависимым и автономным. Панорамные окна придают дому современный вид, больше света и ощущение пространства. Проект рассчитан на круглогодичное проживание большой семьи. По желанию можно изменить планировку, так же доступны разные варианты комплектации строительными и отделочными материалами.
Подготовительные работы
-Разработка индивидуального проекта
-Подготовка комплекта документов для согласования в БТИ
-Предварительный выезд инженера на строительный объект
-Пробное бурение фундамента в 3-х точках
Комплектация
| Описание работы | Под отделку от 9 312 975 руб |
Под ключ от 13 796 325 руб |
| Подготовительные работы Разработка индивидуального проекта Подготовка комплекта документов для согласования в БТИ Предварительный выезд инженера на строительный объект Пробное бурение фундамента в 3-х точках |
✓ | ✓ |
Сваи железобетонные заводского изготовления, ГОСТ Р 19804-2012 Размер ЖБ сваи 200х200х3000 мм Армирование 10 мм, бетон свай марки М300 B22,5) Армированный бетонный ростверк Песчаная подушка Высокопрочная арматура d12 мм класса АIII Бетон заводского изготовления, марки М300 (B22,5) Также, в зависимости от типа грунта и пожеланий заказчика доступны следующие виды фундамента: Свайно-винтовой Ленточный УШП |
✓ | ✓ |
| Ввод закладных утепленных труб D110мм на глубину промерзания для подключения к септику (ЦК) и скважину/колодцу (ЦВ) | ✓ | ✓ |
Обвязка и устройство полов Обвязка из бруса 200х100мм, Лаги 200х50мм Черновой пол доска обрезная 20-25мм Сетка от мышей Утепление пола 200мм Rockwool Парогидроизоляционные и ветро-влагозащитные пленки. Подготовка для укладки ламината/паркета — фанера 18 мм и OSB-3 18мм Наружные стены и скаты Силовой каркас из бруса 150х80мм Утепление каменной ватой Rockwool 150мм Парогидроизоляционные и ветро-влагозащитные пленкиПерегородки Каркас из бруса 50х100мм Звукоизоляция каменной ватой Rockwool 100мм Парогидроизоляционная пленка Отделка: Имитация бруса 130х18мм, сосна, сорт АВ или ГКЛ 12мм Двери межкомнатные Экошпон |
✓ | ✓ |
| Кровельный профлист с покрытием РЕ 0,45 мм Конек плоский 150мм с покрытием РЕ Планки торцевые с покрытием РЕ Подшив свесов: Имитация бруса 130х18мм, сосна, сорт АВ с покраской в два слоя финской пропиткой TEKNOS |
✓ | ✓ |
Монтируем выводы закладных труб и гильз для прокладки коммуникаций в дом. Ввод коммуникаций: Электричество и электрооборудование Водоснабжение и водоотведение (канализация) Отопление Вентиляци |
✓ | |
| Наружние стены — утеплитель ROCKWOOL или Paroc в 2 слоя (100 мм) Чердачное перекрытие — утеплитель ROCKWOOL или Paroc в 4 слоя (200 мм) |
✓ | |
| Оконные конструкции ПВХ REHAU Grazio, стандартных размеров. Толщина профиля 70 мм 2-х камерный стеклопакет (3 стекла), 5-ти камерный профиль (цвет белый), противомоскитные сетки Фурнитура: ROTO NT |
✓ | |
| Входная металлическая дверь с зимним утеплением. Производство: Россия 4-й класс взломостойкости. Толщина металла 1,5 мм, замковая часть 3 мм |
✓ | |
| Лестница приставная на мансарду Полы: Половая доска из сосны 28мм В мокрых зонах цсп/гсп 10мм Гидроизоляция Стены: Имитация бруса 130х18мм, сосна, сорт ав Наклонные стены и потолки Имитация бруса 130х18мм, сосна, сорт ав |
✓ | |
| Отделка фасадов: имитация бруса 130х18мм, сосна, сорт АВ+заводская покраска TEKNOS: обрешетка, откосы Лестница входная в дом: террасная доска, сосна 1,2 м шириной Внешняя покраска бани финской краской Teknos. (нанесение 1 слоя грунтовки, покраска на 2 слоя) |
✓ |
| Название | Описание | Цена |
|---|---|---|
| Комплектация | Подготовительные работы. Разработка индивидуального проекта. Подготовка комплекта документов для согласования в БТИ. Предварительный выезд инженера на строительный объект. Пробное бурение фундамента в 3-х точках. | 0 ₽ |
- Площадь:243 кв. м.
- Фундамент:Свайно-винтовой
- Длина:27 м
- Ширина:11 м
- Основной материал строения:Каркасный, пиломатериалы
- Этажность:2
- Жилых комнат:4
Заявка на расчет стоимости
Проект постройки может быть дополнен или изменен по вашему желанию. Заполните заявку на расчет стоимости.
ЗаказатьДобавить в проект
- Гараж
- Террасу
- Крыльцо
- Балкон
- Изменить планировку
Видеобзоры построенных домов
Трудно разобраться? Не беда
Прочитайте наши статьи о технологиях строительства и используемых материалах.
Свяжитесь с нашими специалистами
По телефону +7 (499) 677-52-28
Или закажите обратный звонок

































































































