Обзор
Характеристики
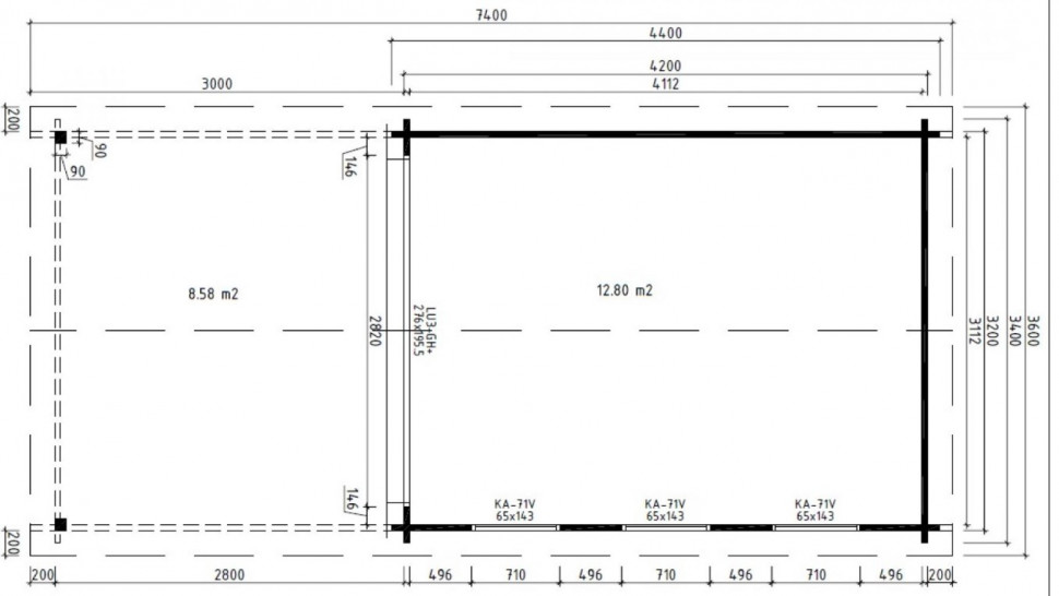
Изящная и легкая летняя кухня с небольшой крытой террасой под одной крышей. Общие размеры 7 на 3 метра. Кухня – 12.8 м2. Терраса – 8.5 м2. Собрана из минибруса 44 мм хвойных пород (на выбор ель или сосна). Вход в кухню через двойную остекленную дверь, три больших окна, почти во всю стену визуально расширяют помещение и делают его очень светлым. Крыша двухскатная, покрыта гибкой черепицей. Устанавливается на легкий блочный фундамент с обвязкой из деревянного бруса. Полы на кухне – строганная доска 35 мм толщиной. Внутренняя отделка может быть прозрачной, с сохранением цвета и текстуры древесины, или с покраской, в выбранный вами цвет. Такая кухня станет любимым местом летнего отдыха на даче или приусадебном участке для всей семьи.
Стоимость включает только стеновой комплект из минибруса. Все остальные комплектующие, а также доставка и сборка обговариваются индивидуально.
- Материал:Ель, сосна
 - Длина:7 м
 - Ширина:3 м
 - Фундамент:Блочный
 - Площадь:21 кв. м.
 - Основной материал строения:мини-брус
 
Заявка на расчет стоимости
Проект постройки может быть дополнен или изменен по вашему желанию. Заполните заявку на расчет стоимости.
ЗаказатьДобавить в проект
- Гараж
 - Террасу
 - Крыльцо
 - Балкон
 - Изменить планировку
 
Видеобзоры построенных домов
Трудно разобраться? Не беда
Прочитайте наши статьи о технологиях строительства и используемых материалах.
Свяжитесь с нашими специалистами
По телефону +7 (499) 677-52-28
Или закажите обратный звонок




























































