Обзор
Характеристики
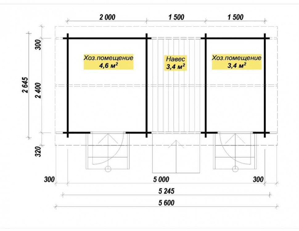
Проект хозяйственного блока для дачи или частного дома с дровяником. Наружные размеры 2.6 на 5.6м, площадь 13.4 м. кв. Два раздельных хоз помещения с отдельными входами: 4,6 и 3,4 м. кв. Дровник – 3,4 м.кв. Легкая быстровозводимая конструкция из минибруса 45х145 мм. Кровельное покрытие – гибкая черепица. Собирается на блочном фундаменте. Двери филенчатые, из массива сосны, полотна 2000х800 мм. Доступны разные варианты отделки (смотрите на изображениях).
- Кол-во комнат:2
- Площадь:13,4
- Материал:Минибрус
- Фундамент:Блочный
- Длина:5.6 м
- Ширина:2.6 м
Заявка на расчет стоимости
Проект постройки может быть дополнен или изменен по вашему желанию. Заполните заявку на расчет стоимости.
ЗаказатьДобавить в проект
- Гараж
- Террасу
- Крыльцо
- Балкон
- Изменить планировку
Видеобзоры построенных домов
Трудно разобраться? Не беда
Прочитайте наши статьи о технологиях строительства и используемых материалах.
Свяжитесь с нашими специалистами
По телефону +7 (499) 677-52-28
Или закажите обратный звонок










































































