Обзор
Характеристики
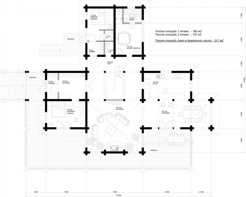
Двухэтажный дом из рубленного бревна (сосна) 414 кв.м, можно заказать воспользовавшись формой на сайте или связавшись с нашим менеджером по телефону +7 (499) 677-52-28. Мы предлагаем бесплатный выезд на замер и консультации, живое портфолио, квалифицированные бригады по три-четыре человека, более 1300 выполненных объектов, большинство новых клиентов приходят по рекомендации. Любой из проектов «Srub.Store» может быть дополнен или изменить по вашему желанию.
- Этажность:2
- Длина:23 м
- Ширина:18 м
- кол-во спален:5
- Площадь:414 кв. м.
- Диаметр:24-26 см
- Основной материал строения:Бревно ручной рубки
Заявка на расчет стоимости
Проект постройки может быть дополнен или изменен по вашему желанию. Заполните заявку на расчет стоимости.
ЗаказатьДобавить в проект
- Гараж
- Террасу
- Крыльцо
- Балкон
- Изменить планировку
Видеобзоры построенных домов
Трудно разобраться? Не беда
Прочитайте наши статьи о технологиях строительства и используемых материалах.
Свяжитесь с нашими специалистами
По телефону +7 (499) 677-52-28
Или закажите обратный звонок

















































































