Обзор
Характеристики
Видеобзоры
Проект "Антверпен" — красочный миниатюрный домик из клеёного бруса, словно сошедший со страниц сказочной книги. Дом имеет массивную кровлю, но при этом выглядит достаточно «легко» и стильно. При размерах 12,4 х 11,1 метра постройка располагает площадью в 197,3 м2. Из неё 27,5 м2 отведено под два крыльца и второй свет. Полезная внутрення площадь "Антверпена" составляет 169,8 м2. Ключевые функциональные зоны располагаются на 1 этаже, площадь которого составляет 106,4 м2. На 2 этаж по проекту отведено 90,9 м2. Дом отлично подходит для сезонного проживания семьи из 4-6 человек. В "Антверпене" предусмотрено всё необходимое для комфортного отдыха и единения с природой.
"Антверпен" - дом с яркой индивидуальностью, эффектный, красивый и очень запоминающийся. Сложно пройти мимо такого архитектурного произведения, не одарив его своим вниманием.
Несмотря на компактные размеры, дом смотрится очень свободно и независимо. Солидности и объема ему придает высокая двускатная крыша, под которой укромно разместился мансардный этаж. В конструкции здания предусмотрено достаточно много окон, расположенных в четко продуманной композиции, благодаря чему они гармонично сочетаются с экстерьером здания. Отделка фасада, выполненная в небесно-голубых тонах, еще больше цепляет взгляд и придает дому особого очарования.
Два небольших крыльца с противоположных сторон здания защищены навесами, поэтому на них всегда можно выйти подышать свежим воздухом, не опасаясь дождя или палящего солнца. На прилегающей к дому территории эффектно будет смотреться мощеная площадка для зоны отдыха. Такой дом отлично впишется в любой природный ландшафт.
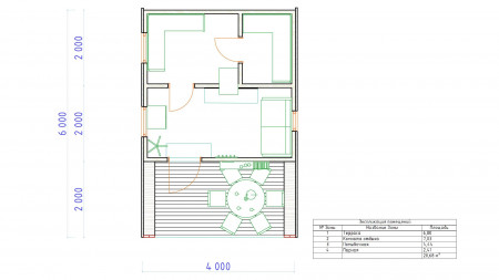
Внутренняя планировка создана по принципу максимального удобства для жильцов, поэтому на сравнительно небольшой площади можно почувствовать себя комфортно и расслабленно. На первом этаже разместились кухня-столовая с выходом в сад, двусветная гостиная, спальня и подсобные помещения. Мансардный этаж отведен под остальные спальни: интерьер можно оригинально оформить, выгодно используя уютное пространство под самой крышей.
Для тех, кто давно стремится воплотить мечту о сказочном загородном коттедже, "Антверпен" станет готовой ее реализацией. Своим привлекательным обликом он точно будет не раз восхищать гостей, а для жильцов предстанет идеальным местом для вдохновения, отдыха и душевного равновесия.
Планы этажей


Комплектация
- Транспортные и накладные расходы (Московская область).
- Организация проживания рабочих.
- Монтаж.
- Все расходные и сопутствующие материалы.
- Инженерный и технический надзор специалистами компании.
Фундамент:
- Геодезические работы: разбивка осей, нивелировка, привязка строения на участке.
- Снятие почвенно-растительного слоя в пятне строительства глубиной 0,3 м.
- Укладка геотекстильной ткани на основание котлована.
- Песчаная подготовка под плитный фундамент толщиной 0,2 м.
- Устройство подбетонки М200 по песчаной подготовке.
- Устройство рулонной гидроизоляции в 1 слой.
- Устройство опалубки и арматурных каркасов фундамента.
- Приёмка сертифицированной бетонной смеси М300 с вибрированием на фундаменте.
- Устройство армированного ж/б ростверка (ленты) размером 0,1(h)х0,15м по плите (под несущими стенами).
Стеновой комплект:
- Укладка рулонной гидроизоляции «Стеклоизол» на ростверк.
- Брус клееный профилированный сечением 185(h)х202мм/162мм, клеевая система Akzo Nobel (Швеция).
- Антисептирование на производстве составом REMMERS.
- Обработка торцов от растрескивания составом TEKNOS.
- Сверление отверстий для скрытой установки электрики.
- Профильная система по Вашему выбору.
- Подвенечный оклад из доски 50х200мм экспортного качества.
- Уплотнительная лента для герметизации перерубов.
- Оцинкованный металлический крепеж.
- Балки перекрытия из сухой обрезной доски 50х190мм экспортного качества или клееные конструкционные балки, обработанные огнебиозащитным составом.
Кровля:
- Стропильная система из сухой обрезной доски 50х190мм экспортного качества, обработанная огнебиозащитным составом.
- Обрешетка из бруска 50х50мм экспортного качества.
- Оцинкованный металлический крепеж.
- Утепление 250мм с использованием экологически чистых утеплителей.
- Пароизоляция мембранного типа и гидроизоляция.
- Мягкая кровля SHINGLAS со всеми комплектующими.
- Вентилируемый подшив свесов сухой строганной доской 21мм экспортного качества.
- Водосточная система.
Окна:
- комплект обсадных коробок;
- оконные и балконные блоки ПВХ REHAU (Германия) толщиной 70мм, энергосберегающий 2-х камерный стеклопакет.
Отделка:
- силовой каркас внутренних перегородок;
- наружная и внутренняя покраска материалами SIKKENS(Швеция)/ZOBEL(Германия) предоставляется дополнительно.
Доставка:
- упаковка в специальную воздухопроницаемую брендированную пленку;
- погрузка и доставка на объект покупателя в Московскую область.
Важно! Стоимость может отличаться в зависимости от выбранной комплектации дома, а также региона строительства. Уточните стоимость данного проекта у менеджеров srub.store.
- Этажность:2
- Длина:12.4 м
- Ширина:11.1 м
- кол-во спален:4
- Площадь:197.3 кв. м.
- Основной материал строения:Клееный брус
Заявка на расчет стоимости
Проект постройки может быть дополнен или изменен по вашему желанию. Заполните заявку на расчет стоимости.
ЗаказатьДобавить в проект
- Гараж
- Террасу
- Крыльцо
- Балкон
- Изменить планировку
Видеобзоры построенных домов
Трудно разобраться? Не беда
Прочитайте наши статьи о технологиях строительства и используемых материалах.
Свяжитесь с нашими специалистами
По телефону +7 (499) 677-52-28
Или закажите обратный звонок





















































