Обзор
Характеристики
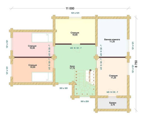
Конструкция двухэтажного дома с террасой из бревна (9 х 11 м, площадь 158 кв. м) сочетает в себе достоинства традиционной русской рубленой избы, изысканного дизайна и современных технологий. Геометрия дома сложна и изысканна.
Материал: оцилиндрованные бревна из древесины хвойных пород, калиброваны под стандартный размер и полностью подготовленные для монтажа, Высококачественная древесина просушена и, после обработки антисептической пропиткой и покрытия лакокрасочным составом, может десятилетиями сохранять отличные прочностные и теплоизолирующие свойства. Дерево, из которого построен дом, формирует экологически безопасную среду, способно само регулировать влажностной режим во внутренних помещениях.
- Этажность:2
- Длина:11 м
- Ширина:8.8 м
- кол-во спален:5
- Площадь:158.8 кв. м.
- Диаметр:22 см
- Основной материал строения:ОЦ бревно
Заявка на расчет стоимости
Проект постройки может быть дополнен или изменен по вашему желанию. Заполните заявку на расчет стоимости.
ЗаказатьДобавить в проект
- Гараж
- Террасу
- Крыльцо
- Балкон
- Изменить планировку
Видеобзоры построенных домов
Трудно разобраться? Не беда
Прочитайте наши статьи о технологиях строительства и используемых материалах.
Свяжитесь с нашими специалистами
По телефону +7 (499) 677-52-28
Или закажите обратный звонок














































































