Обзор
Характеристики
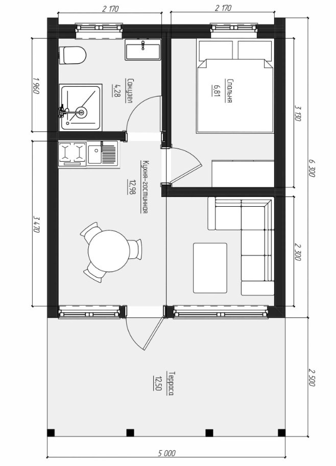
Проект небольшого дачного БарнХаус домика 6,3 на 5 м, 24 м. кв, плюс крытая терраса 5 на 2,5 м (12,5 м. кв). Проект универсальный, может использоваться как гостевой дом, туристический (глэмпинг) или баня, с минимальными изменениями в планировке.
На схемах представлены два варианта: базовый (версия для дачного дома), с кухней гостиной – 13 м. кв, спальной комнатой 6,8 м, и совмещенным санузлом 4,28 м. кв. И вариант банного и/или гостевого домика: кухня-гостиная 10,44 м. кв, спальня 6,8 м, санузел - 3.25 м, парная – 3,12 м. Высокие потолки 3 м.
Дача БарнХаус имеет каркасную утепленную конструкцию, с толщиной стен 15 см. что дает возможность круглогодичного использования. Фундамент легкий ленточный, свайный или блочный. Фасады из планкена + профилированный лист, возможны варианты из блок-хауса или имитации бруса. Внутренняя отделка – имитация бруса или вагонка. Цвет отделки по выбору заказчика.
- Площадь:24 м
- Этажность:1
- Материал:Каркасный
- Фундамент:Ленточный
- Длина:6.3 м
- Высота:3 м
- Ширина:5 м
Заявка на расчет стоимости
Проект постройки может быть дополнен или изменен по вашему желанию. Заполните заявку на расчет стоимости.
ЗаказатьДобавить в проект
- Гараж
- Террасу
- Крыльцо
- Балкон
- Изменить планировку
Видеобзоры построенных домов
Трудно разобраться? Не беда
Прочитайте наши статьи о технологиях строительства и используемых материалах.
Свяжитесь с нашими специалистами
По телефону +7 (499) 677-52-28
Или закажите обратный звонок





















































































