Отели
В последние годы, с развитием внутреннего туризма в России, увеличением спроса на отдых и путешествия возникла нехватка доступного арендного жилья. Поэтому строительство отеля в сложившихся обстоятельствах — это выгодная инвестиция, которая позволит занять нишу в быстрорастущем сегменте рынка коммерческой недвижимости.
Процесс возведения отеля или гостиницы — это комплексная и трудоёмкая задача, справиться с которой под силу только настоящим профессионалам. Компания srub.store осуществляет строительство отелей в Москве по самой выгодной цене. За годы нашей работы мы собрали команду высококлассных профессионалов, готовых выполнить работу абсолютно любой сложности.
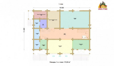
На странице представлены десятки типовых проектных решений отелей и гостиниц. Вы можете подобрать подходящий по концепции готовый вариант постройки или заказать индивидуальный проект связавшись с одним из наших консультантов.
Наши архитекторы и дизайнеры разработают для Вас оригинальное, конкурентноспособное и престижное решение, которое будет выглядеть желанным в глазах будущих посетителей!
Современное строительство отелей
В туристический сезон наиболее прибыльный вид бизнеса — это сдача в аренду доступного сервисного жилья. За короткий промежуток времени реализовать такой бизнес-проект вполне возможно. Мы осуществляем строительство отелей под ключ с учётом актуальных требований к объектам такого типа.
При планировании отеля важно заранее определиться со следующими особенностями постройки:
- Расположение. В каком месте будет расположена постройка — вблизи курортной зоны, центра города или ключевого объекта инфраструктуры (аэропорт, вокзал).
- Сезонность. Будет ли рядом с отелем располагаться кемпинг-зона для приёма отдыхающих в тёплое время года.
- Функциональное оснащение. Какие функциональные зоны должны быть предусмотрены внутри постройки — спортзал, детская зона, развлекательный комплекс, конференц-зал, рекреационная зона и т. д.
При наличии этой информации наши специалисты смогут разработать для Вас наиболее оптимальное проектное решение с учётом всех особенностей объекта и выбранной местности.
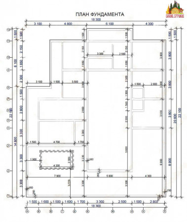
На готовый и утверждённый заказчиком проект собираются необходимые разрешительные документы, после чего начинаются непосредственно строительные работы.
На всех этапах строительных работ главный архитектор находится на объекте и лично контролирует процесс возведения объекта. Основная часть строительных работ обычно производится в период между окончанием весны и началом осени — в это время осуществляется рытьё котлована, закладка фундамента и вытягивание объекта в высоту.
В зимний период все работы перемещаются внутрь здания, и только с наступлением следующего тёплого сезона осуществляется внешняя отделка постройки.
Это наиболее оптимальная и эффективная схема круглогодичной работы, которая позволяет нашим заказчикам получать объекты в срок, без простоев и сверхпроектных затрат.
Наша компания srub.store осуществляет строительство отелей в России в соответствии с официальной классификацией гостиничных объектов, отражённой в нормативно-правовом документе «Положение о классификации гостиниц».
У нас можно заказать строительство под ключ следующих объектов:
- Мотеля.
- Хостела.
- Гостевого дома.
- Отеля (гостиницы).
- Дома отдыха.
- Мини отеля (мини-гостиницы).

































































































































