Проекты дачных домов
Планируя строительство на садовом участке, нужно, в первую очередь, изучить проекты дачных домов и выбрать оптимальный по площади и планировке вариант. Это может быть компактный одноэтажный коттедж или просторный дом с мансардой – все зависит от желаний и потребностей заказчика.
Типовые проекты дачных домов и особенности выбора
Среди типовых проектов для строительства дачного дома самыми востребованными являются:
- Компактные одноэтажные дачные дома, проекты которых могут быть как в традиционном, так и в современном стиле. Традиционные дома предполагают дизайн, характерный для деревянных срубов, наличие двускатной крыши, контрастные наличники. А современная стилистика тяготеет к строгим геометрическим формам и оригинальным планировочным решениям (например, второй свет, открытая терраса на крыше, балкон с прозрачным ограждением).
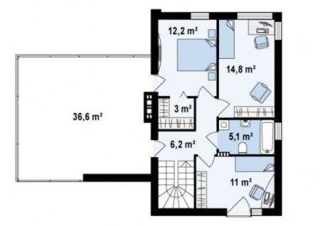
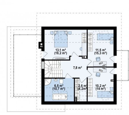
- Дома с мансардой. Проект каркасного дачного дома с мансардой позволяет получить фактически полноценный двухэтажный коттедж и при этом сэкономить. Благодаря эффектным мансардным окнам выглядят такие дома очень стильно и дорого. А дополнительную ценность некоторых проектам придает наличие гаража в доме или веранды для отдыха.
- Просторные двухэтажные коттеджи. В большинстве проектов двухэтажных домов реализована идея второго света, что позволяет визуально увеличить общественное пространство. Во многих проектах также предусмотрен эркер, балкон или открытая терраса на втором этаже. А первый этаж дополнен крытой верандой или широким крыльцом с большим навесом.
При необходимости в типовой проект можно внести незначительные изменения, адаптировав его под запросы заказчика. Но этот момент нужно обсуждать с застройщиком в индивидуальном порядке.
Важно! Выбирая проект для строительства дачного дома, следует учитывать не только размер и ландшафт участка, но также, в каком режиме будет эксплуатироваться дом, и сколько людей там будет отдыхать. Для комфортного пребывания на даче каждому домочадцу требуется личное пространство площадью 12-15 кв.м. Так что для семьи из четырех человек идеально подойдет дом площадью около 100 кв.м.
Преимущества каркасного дачного дома
У каркасных домов много преимуществ, благодаря которым спрос на них стабильно растет. Среди наиболее важных:
- экологичность – для возведения каркасных домов используются только натуральные материалы, так что жить в них комфортно и удобно;
- быстрота возведения – каркасный дачный дом в Москве можно построить за несколько недель;
- энергоэффективность – конструкция стен такого дома предусматривает наличие утеплителя, который снижает теплопотери и обеспечивает в помещениях комфортный микроклимат (это важно, ведь в дачных домах редко монтируют систему отопления, а прогревают дом чаще при помощи камина или электрообогревателя);
- доступная цена – каркасный дом с мансардой обойдется значительно дешевле кирпичного или рубленого коттеджа, а значит, сэкономленные средства можно будет потратить на обустройство участка;
- вариативность – сегодня покупателям доступны проекты дачных домов с различной планировкой;
- эстетика – дачный каркасный дом можно оформить в любом стиле от имитации традиционного бруса до модного фахверка, в любом случае выглядеть он будет презентабельно и добротно.
Где заказать каркасный дачный дом в Москве?
Наша компания строит каркасные дачные дома в Москве под ключ по типовым проектам и предлагает самые выгодные условия и цены в столичном регионе. В каталоге представлены все актуальные проекты недорогих дачных домов с фото, стоимостью и техническими характеристиками, что поможет быстро найти подходящий вариант. А если вам требуется профессиональная помощь в выборе проекта, воспользуйтесь онлайн-чатом. Специалист компании расскажет вам об особенностях понравившихся вам домов и поможет определиться с выбором.





















































































































