Одноэтажные дома из профилированного бруса
Тенденция использования в повседневной жизни натуральных экологически чистых материалов, продуктов питания не обошла стороной и строительную сферу.
Всё большее число россиян, и прежде всего москвичей, отдают предпочтение при постройке или покупке дома строениям из дерева. Самым востребованным натуральным материалом на сегодняшний день является профилированный брус.
Он имеет привлекательный внешний вид, высокие физико-механические характеристики и оптимальную стоимость. При изготовлении профилированного бруса не используются химические вещества, поэтому он на 100% экологичен и безопасен.
Наибольший спрос в Москве и Московской области приходится на одноэтажные дома из профилированного бруса, так как такие постройки сочетают в себе практичность и доступную стоимость.
В чём привлекательность одноэтажных построек?
По своей стоимости одноэтажные дома из профилированного бруса конкурируют с лёгкими каркасными коттеджами, имеют сходные показатели долговечности с блочными постройками.
Малая высота компановки, облегчённый фундамент, отсутствие второго этажа или мансарды существенно удешевляет стоимость постройки. На отопление одноэтажного дома в холодное время года уходит меньше электроэнергии/топлива (дров, газа, угля и т. д.).
Ввиду всех этих факторов одноэтажная постройка из профилированного бруса для сезонного или круглогодичного проживания является самым оптимальным с экономической точки зрения вариантом.
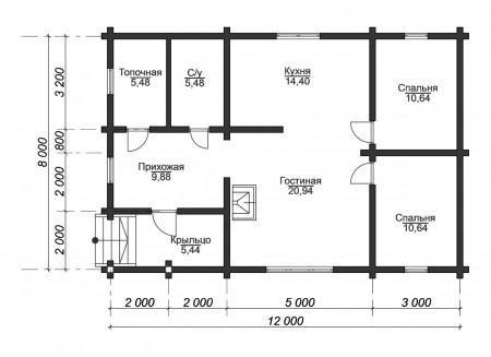
Стандартный типовой проект одноэтажного дома для постоянного проживания предусматривает наличие кухни, тамбура, гостиной, холла, санузла и нескольких спальных комнат. Для оптимального размещения всех функциональных помещений внутри постройки она должна иметь размеры минимум 9х9 м.
Сезонный загородный дом в один этаж может иметь гораздо меньшие размеры — 5х5 или 6х6 м. В типовом проекте для такой постройки могут быть предусмотрены стандартные функциональные помещения — кухня, санузел и одна спальная комната.
Особенно выгодно строить из профилированного бруса сезонные постройки, так как материал сам по себе имеет красивый внешний вид, ему не требуется дополнительная облицовка. Это позволяет сэкономить большое количеств, которые можно направить на обустройство готового дома.
Наша компания srub.store занимается строительством одноэтажных домов из профилированного бруса «под ключ» по индивидуальным и типовым проектам.
У нас Вы можете заказать качественный одноэтажный дом из профилированного бруса в Москве и Московской области любой планировки и формы (с верандой, мансардой, приусадебными пристройками и т. д.).






























































































