Дома из профилированного бруса 9х9
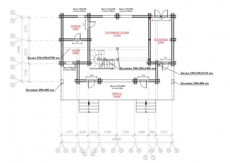
В доме 9х9 метров с комфортном может проживать семья из 4-6 человек. Максимальная площадь двухэтажной постройки с такими размерами может составлять 140 м2, благодаря чему внутри неё помещаются все необходимые функциональные зоны — 3-4 спальные комнаты, несколько санузлов, гостиная, кухня-столовая, рабочий кабинет, котельная и холл.
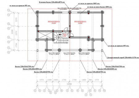
В целях экономии второй этаж может быть заменён мансардой. При этом полезная площадь постройки практически не изменится.
Для реализации проектного решения может использоваться профилированный брус с сечением 150х150 или 200х200 мм. Толщина материала напрямую зависит от предназначения постройки.
Если требуется дом для сезонного проживания за городом, то оптимальным вариантом из экономических соображений будет брус с толщиной 150х150 мм. Для возведения постоянного жилья нужен материал с большим сечением — 200х200 мм. Даже при минимальном фасадном утеплении в такой постройке будет комфортно зимовать в средней полосе России.
Почему для строительства дома 9х9 метров стоит выбрать профибрус?
Профилированный брус является натуральным высокотехнологичным материалом, поэтому дома из него получаются безопасными и экологичными.
При его изготовлении используется только внутренняя часть деревьев (сердцевина). Обработанный на специальных станках материал получается достаточно прочным, с чёткой геометрией профиля и оригинальным внешним видом.
При этом он полностью сохраняет уникальные свойства древесины (сосна, ель) — низкую теплопроводность и высокую звукоизоляцию.
Поэтому дома из профилированного бруса получаются надёжными и долговечными. По стоимости они обходятся дешевле построек из шлакоблока или кирпича, а по своим эксплуатационным характеристикам практически ни в чём им не уступают.
Вот ещё некоторые преимущества профибруса как строительного материала которые выгодно его отличают:
- Не требует облицовки, так как изначально имеет оригинальный и максимально естественный внешний вид.
- Имеет надёжную и герметичную соединительную систему, которая обеспечивает строениям качественную защиту от влаги и ветра.
- Отличается качественной и точной торцевая обработка на современном оборудовании позволяет собирать дома из профилированного бруса прямо на строительной площадке без предварительной подгонки.
- Имеет более низкую стоимость чем оцилиндрованное бревно.
Все эти качества ещё раз подтверждают, что профилированный брус является оптимальным решением для постройки дома.
Заказать дом из профибруса 10х10 метров в Москве или Московской области по самой выгодной цене можно на srub.store. Наши специалисты помогут Вам выбрать подходящий типовой проект или разработать свой собственный (индивидуальный) с учётом всех требований.









































































![Дом с мансардой Д-003 [105 кв.м]](/wa-data/public/shop/products/20/08/820/images/3099/3099.450.jpg)
![Дом с мансардой Д-003 [105 кв.м]](/wa-data/public/shop/products/20/08/820/images/3100/3100.450.jpg)
![Дом с мансардой Д-003 [105 кв.м]](/wa-data/public/shop/products/20/08/820/images/3101/3101.450.jpg)