Дома из бревна 9 на 9 м
Дома из бревна 9 на 9 достаточно просторные и подходят для проживания больших семей. К тому же они быстро строятся, а среди типовых проектов есть варианты на любой вкус. Это объясняет высокий спрос на такие объекты в Москве, где деревянное домостроение активно развивается.
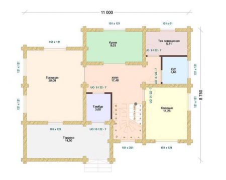
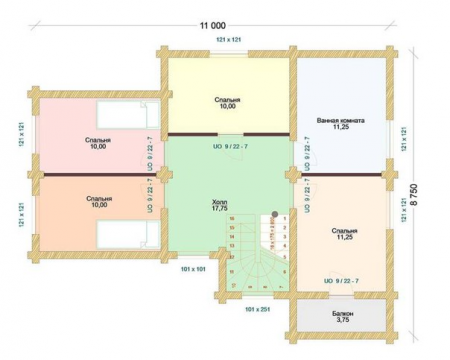
Особенности планировки домов 9 на 9
В линейке деревянных домов размером 9 на 9 метров есть объекты с различными вариантами планировки:
- Двухэтажные со спальнями на втором этаже и большой общественной зоной на первом. Такое планировочное решение идеально для коттеджей, которые предназначены для постоянного проживания, так как позволяет улучшить эргономику пространства и организовать быт с максимальным комфортом.
- Одноэтажные с мансардой – этот вариант оптимален для тех, кому нужна комфортабельная дача. В мансарде обычно располагается спальня, но помещение можно перепрофилировать в удобную зону для семейного отдыха.
Важно! Полезную площадь дома можно увеличить за счет балкона, террасы, веранды или большого крытого крыльца. Такие опции не только функциональны, но и эстетически оправданы, так как позволяют усложнить архитектуру здания и улучшить его внешний вид.
Строительство домов 9 на 9
Для возведения просторного дома из бревна 9 на 9 требуется надежный фундамент. Он может быть ленточным, плитным или столбчатым, а работы по его устройству должны быть закончены до того, как домокомплект для сборки будет доставлен заказчику, ведь фундамент обязательно должен выстояться.
Сам дом изготавливается на производственном участке, где выполняются все работы: от подготовки лесоматериала до маркировки деталей и упаковки деталей дома. А на объекте клиента происходит только окончательный монтаж и подгонка (если она требуется).
Дома из бревна 9 на 9 в Москве под ключ
Наша компания специализируется на строительстве деревянных домов и работает по всей территории Московской области. У нас можно заказать дом из бревна 9 на 9 метров по типовому или индивидуальному проекту, выбрав объект желаемой этажности и с необходимым набором опций. А уточнить сроки выполнения работ и условия оказания дополнительных услуг можно, задав вопрос менеджеру компании через чат на сайте.






































