Дома из оцилиндрованного бревна 9 на 9
Дома из оцилиндрованного бревна 9 на 9 – объекты среднего размера, которые подходят как для использования в качестве дачных коттеджей, так и для постоянного проживания. Теплые, долговечные и экологичные, они отвечают всем требованиям хозяев и позволяют создать комфортные условия для жизни семьи за городом.
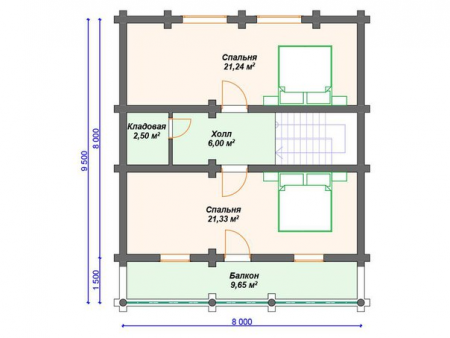
Особенности домов 9 на 9 м
Планировка бревенчатых домов размером 9 на 9 метров всегда хорошо продумана и предполагает наличие большой гостиной, которая часто совмещена с кухней или столовой. Эта общественная зона располагается на первом этаже и создает уникальные возможности для организации приятного семейного досуга. А приватные помещения – детские комнаты и спальни – находятся либо на втором этаже (если речь идет о двухэтажном коттедже или объекте с мансардой), либо рядом с гостиной, и планируются как обособленный блок. В результате получается эргономичная и функциональная постройка с отличными эксплуатационными характеристиками и комфортным микроклиматом.
Популярные проекты
Среди популярных проектов домов из оцилиндрованного бревна 9 на 9 м объекты:
- одноэтажные с мансардой – они являются доступной альтернативой двухэтажным домам;
- с тремя или четырьмя спальнями – это отличный вариант для большой семьи;
- с просторной верандой, террасой или крытым крыльцом – такие опции усложняют и улучшают архитектуру дома, а еще там можно оборудовать дополнительные места для отдыха на свежем воздухе.
Важно! Наиболее сбалансированным по цене и функционалу будет дом из оцилиндрованного бревна 9 на 9, построенный по готовому типовому проекту, но скорректированному с учетом потребностей и пожеланий заказчика.
Дома из оцилиндрованного бревна 9 на 9 м: как заказать в Москве онлайн?
Наша компания строит деревянные дома в Москве и Московской области под ключ по типовым и индивидуальным проектам. Мы работаем круглогодично, выполняем весь комплект строительных работ и принимаем заказы онлайн. А, чтобы купить дом из оцилиндрованного бревна размером 9 на 9 метров, выберите в каталоге подходящий по техническим характеристикам и планировке проект и оформите заказ через «Корзину» или по телефону.


















































