Дома из оцилиндрованного бревна 8 на 8
Дома из оцилиндрованного бревна 8 на 8 – оптимальный вариант и для сезонного отдыха, и постоянного проживания. Такие объекты подходят для небольших семей, отличаются продуманной планировкой и доступной ценой, а их строительство под ключ занимает совсем немного времени.
Преимущества дома 8 на 8
У небольших бревенчатых домов размером 8 на 8 метров много преимуществ:
- Они обладают всеми достоинствами деревянных объектов и отличаются низкой теплопроводностью, экологичностью, комфортным микроклиматом и особой эстетикой. При правильном монтаже и утеплении сруба теплопотери можно свети к минимуму, что позволит экономить на отоплении.
- Компактные бревенчатые дома не доставляют хлопот в ходе эксплуатации и не требуют отделки.
- Занимают немного места на участке.
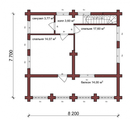
Особенности проектирования
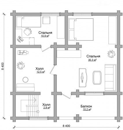
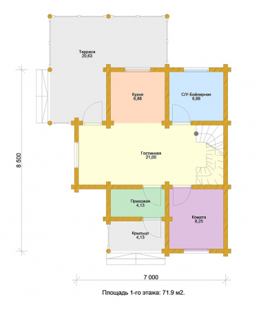
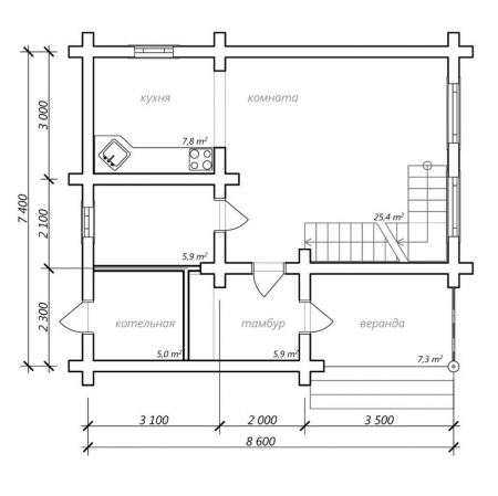
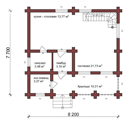
Все типовые проекты домов из оцилиндрованного бревна 8 на 8 отличаются улучшенной эргономикой. Это компенсирует небольшую площадь построек и дает возможность хозяевам обустроить жилое пространство в полном соответствии с личными предпочтениями. Значительная часть первого этажа (или дома, если речь идет об одноэтажном объекте), как правило, отведена под общественную зону, в которую входит гостиная, кухня, столовая, прихожая. А спальни располагаются либо на втором этаже, либо на первом рядом с гостиной.
У покупателей таких домов в приоритете проекты:
- двухэтажных коттеджей – такие модели занимают на участке столько же места, что и одноэтажные, но пори этом имеют увеличенную площадь;
- с дополнительными опциями – это может быть веранда, терраса, большое крыльцо, навес для автомобиля;
- с мансардным этажом – по цене они дешевле, чем двухэтажные, но обеспечивают тот же функционал.
Важно! Чтобы минимизировать риски при возведении бревенчатого дома и получить полностью готовое к проживанию жилье, лучше заказать строительство под ключ.
Дома из оцилиндрованного бревна 8 на 8: как заказать в Москве?
Наша компания возводит практичные и комфортабельные дома из оцилиндрованного бревна 8 на 8 в Москве и Московской области. Мы принимаем заказы круглогодично, строим под ключ и даем гарантию на все работы. Выбрать проект можно в нашем каталоге, где представлена актуальные модели бревенчатых домов различной планировки, а оформить заказ – онлайн или по телефону.


































