Каркасно-щитовые бани
Каркасно-щитовые бани — это дешёвые, быстровозводимые конструкции, сочетающие в себе оптимальные эстетические и эксплуатационные характеристики. Основу таких построек составляют готовые щиты, состоящие из бруса (рёбра жёсткости), пароизоляционного материала, утеплителя (минеральная вата, базальное волокно) и OSB-листов.
Заказать строительство быстровозводимой каркасно-щитовой бани в Москве или Подмосковье можно на srub.store. Наши мастера в кратчайшие сроки выполнят монтаж конструкции «под ключ» по самой выгодной цене!
Преимущества каркасно-щитовых бань
Одно из важнейших преимуществ каркасно-щитовой технологии строительства — быстровозводимость. На сборку небольшой бани требуется от 1 до 2 недель. При этом готовые конструкции не дают усадки, в отличие от традиционных бревенчатых строений.
- Доступность. Цена каркасно-щитовой бани одна из самых низких на отечественном строительном рынке.
- Безопасность. При строительстве объектов по каркасно-щитовой технологии используются только натуральные и безопасные материалы. Они не выделяют в воздух вредные испарения (даже при высокой температуре) или неприятный запах. Поэтому внутри таких бань всегда сохраняется благоприятный микроклимат.
- Срок службы. Построенные по технологии объекты имеют длительный срок службы — от 20 лет. Они способны долгие годы выдерживать постоянные температурные перепады и воздействие атмосферных осадков.
- Фундамент. Для устройства каркасно-щитовой бани не требуется дорогостоящий бетонный фундамент, достаточно облегчённого свайно-винтового варианта. Он быстро монтируется, отличается высокой надёжностью и низкой стоимостью, так как в технологии отсутствуют бетонные, а также земляные работы (рытьё котлована).
- Теплоизоляционные свойства. Каркасно-щитовые конструкции лучше всего подходят для устройства бань, так как быстро прогреваются и длительное время удерживают тепло. Эта особенность технологии делает эксплуатацию готовых объектов более удобной и экономичной.
- Вес конструкций. Щиты для возведения каркасно-щитовых бань имеют относительно небольшой вес, поэтому для их монтажа не требуется тяжёлая подъёмная спецтехника.
- Внешняя отделка. Технология не накладывает никаких ограничений на тип внешней отделки. Для этого можно использовать любой материал — имитацию бруса, вагонку, сайдинг и т. д.
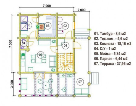
На странице представлены готовые проекты каркасно-щитовых бань самых распространённых и популярных размеров. В каталоге типовых решений присутствуют компактные постройки с крыльцом, террасой.
При необходимости архитекторы srub.store могут разработать для Вас индивидуальное проектное решение каркасно-щитовой бани с учётом всех пожеланий, особенностей земельного участка и имеющегося бюджета. Для получения дополнительной информации обращайтесь по телефону: +7 (499) 677-52-28.













































