Обзор
Характеристики
Видеобзоры
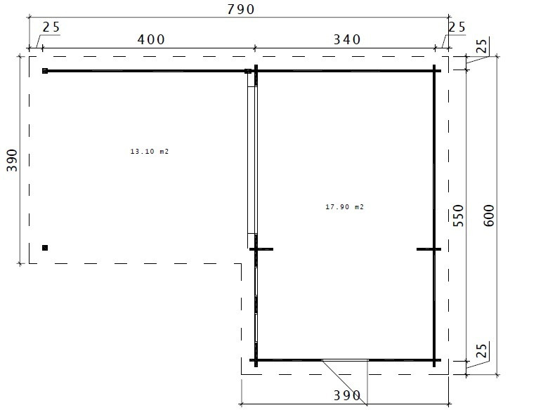
Беседка миникафе из минибруса включает в себя несколько зон:
- гриль;
- открытая часть со столами;
- закрытая часть.
Беседка имеет необычную угловую форму и представляет собой две раздельные зоны, открытую и закрытую. В открытой можно разместить столики и гриль, в закрытой - кухню.
Беседка отлично подойдет для небольших заведений общественного питания: летних кафе, шашлычных или как место для семейного отдыха.
Габариты и площадь определяются индивидуально по согласованию с заказчиком. Проект может быть изменен по желанию клиента. Выезд на замер – бесплатно.
- Основной материал строения:мини-брус
Заявка на расчет стоимости
Проект постройки может быть дополнен или изменен по вашему желанию. Заполните заявку на расчет стоимости.
ЗаказатьДобавить в проект
- Гараж
- Террасу
- Крыльцо
- Балкон
- Изменить планировку
Видеобзоры построенных домов
Трудно разобраться? Не беда
Прочитайте наши статьи о технологиях строительства и используемых материалах.
Свяжитесь с нашими специалистами
По телефону +7 (499) 677-52-28
Или закажите обратный звонок
































































