Обзор
Характеристики
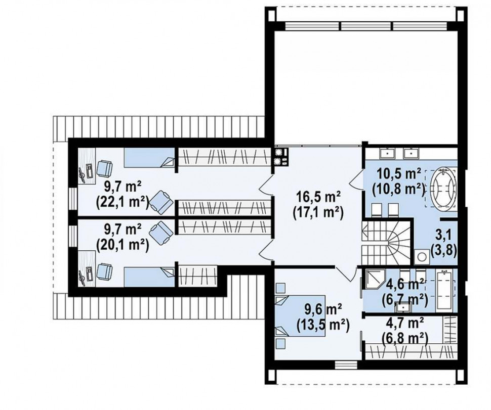
Проект большого двухэтажного (второй свет) дома в стиле БарнХаус ля постоянного проживания. Общие размеры строения 16,5 на 15,6 м, площадь 235 м2, в доме 5 комнат, 2 санузла и большой гараж на 2 машины. На первом этажа размещены гостиная 34,2 м2, кухня 14 м, спальня 13,1 м, санузел 6,5 м, гараж 32,9 м, подсобные помещения. На втором три спальни 22, 20 и 13,5 метра, плюс холл и санузел.
Базовая комплектация
Основание.
Ленточный фундамент. Утеплённая железобетонная плита с закладными под коммуникации.
Каркас и силовые конструкции
Несущие стены, межэтажное перекрытие, стропила
Комплект крепежа силового каркаса
Конструктивный проект, типовые узлы, инструкция по сборке каркаса
Балки и колонны. Сборные/ сварные согласно проекта
Гидроизоляция.
Фасады
Обрешётка силового каркаса. Профиль ОУВ-45-0,7, шаг 500 мм
Обрешётка силового каркаса. Профиль ОУВ-45-0,7, шаг 300 мм
Мембрана ветрозащитная
Мембрана ветрозащитная
Облицовка фасадов — планкен
Облицовка фасадов — ветрозащитная плита 25 мм
Дополнительное утепление фасада 50 мм
Устройство откосов на окна
Перекрытие и лестница
Черновой пол по обрешётке и балкам ЛСТК. Лестница деревянная техническая.
Кровля
Комплектующие для кровли
Мембрана ветрозащитная
Обрешётка.
Металлический профиль ОУВ-45-0,7
Окна, входная дверь
Окна металлопластиковые 58 мм, с/п 4-10-4
Отливы металлические, окраска RAL
Дверь входная под стекло
Внутренние перегородки и перекрытия
Шумоизоляция – каменная вата 100 мм
Пароизоляция
Чистовая отделка
Обработка планкена антисептик 2 слоя
Декоративная акриловая штукатурка, фактура «шуба»
Планкен прямой. Обработка планкена грунт + краска 2 слоя
Водосточные системы и инженерные коммуникации
Водосточная система Docke Premium, цвет из ассортимента
Кабель розеточной сети ВВГнг-п 3х2,5
Кабель сети освещения ВВГнг-п 3х1,5
Роутер Wi-Fi
Слаботочные сети, роутер Wi-Fi
Распределительный щит.
Коммутационное оборудование, автоматы, УЗО. IEK
Электрические выводы для подключения конвекторов
Трубы водоснабжения с кислородным барьером
Трубы канализационные
Вентиляционные каналы
Сопутствующие работы
Доставки материалов
Разгрузки и транспортные расходы
Накладные строительные расходы
- Кол-во комнат:5
- Площадь:235
- Этажность:2
- Материал:Каркасный
- Ширина:15.6 м
- Фундамент:Ленточный
- Длина:16.5 м
Заявка на расчет стоимости
Проект постройки может быть дополнен или изменен по вашему желанию. Заполните заявку на расчет стоимости.
ЗаказатьДобавить в проект
- Гараж
- Террасу
- Крыльцо
- Балкон
- Изменить планировку
Видеобзоры построенных домов
Трудно разобраться? Не беда
Прочитайте наши статьи о технологиях строительства и используемых материалах.
Свяжитесь с нашими специалистами
По телефону +7 (499) 677-52-28
Или закажите обратный звонок



















































































