Обзор
Характеристики
Небольшая одноэтажная Барн баня будет идеально смотреться рядом с домом БарнХаус. Но хорошо впишется в любую архитектурную композицию, реализованную в современном стиле.
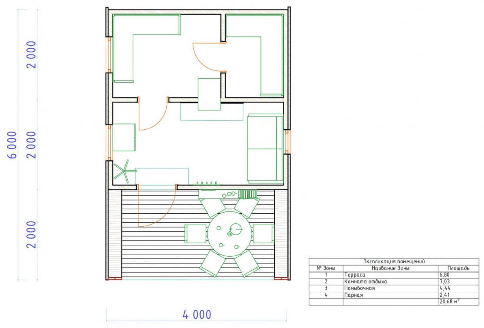
Наружные размеры бани 6 на 4 метра, общая полезная площадь 20,6 м. кв. Внутренняя площадь: 13,88 м2. Состоит из четырех секций: парная 2,4 м, помывочная 4,4 м, небольшая комната отдыха 7 м, и расположенная при входе терраса 6,8 м. Благодаря очень компактным размерам баня быстро и легко прогревается.
Собирается на легком ленточном фундаменте. Наружные несущие стены и перегородки выполнены из сухого бруса, перекрытия утеплены минватой. Что позволяет пользоваться баней в течении всего года. Внешняя отделка - дерево, профлист. Внутренняя - дерево, имитация бруса. Остекление: метало-пластиковые окна с двухкамерными стеклопакетами. Входная металлическая дверь.
- Площадь:20,6 м
- Этажность:1
- Материал:Каркасный
- Фундамент:Ленточный
- Длина:6 м
- Ширина:4 м
Заявка на расчет стоимости
Проект постройки может быть дополнен или изменен по вашему желанию. Заполните заявку на расчет стоимости.
ЗаказатьДобавить в проект
- Гараж
- Террасу
- Крыльцо
- Балкон
- Изменить планировку
Видеобзоры построенных домов
Трудно разобраться? Не беда
Прочитайте наши статьи о технологиях строительства и используемых материалах.
Свяжитесь с нашими специалистами
По телефону +7 (499) 677-52-28
Или закажите обратный звонок




























































