Обзор
Характеристики
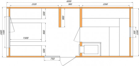
Баня «Викинг» 6 на 2,2 метра с торцевым входом, состоит из трех секций: парная 2 м, предбанник – 1,6 м, и комната отдыха 2 м. На дровах, благодаря небольшим размерам и хорошему утеплению легко прогревается и держит температуру даже в серьезные морозы. Основной материал – минибрус, хвойных пород или из кедра, 44 мм толщиной. Утепление корпуса – плиты минерального утеплителя, пол – пенопластом. Входная дверь – двухкамерная.
Оригинальный дизайн делают баню «Викинг» украшением любого двора. Она универсально хорошо смотрится рядом с современным коттеджем и у загородной дачи.
- Материал:Ель, кедр
- Длина:6 м
- Ширина:2.2 м
- Основной материал строения:мини-брус
Заявка на расчет стоимости
Проект постройки может быть дополнен или изменен по вашему желанию. Заполните заявку на расчет стоимости.
ЗаказатьДобавить в проект
- Гараж
- Террасу
- Крыльцо
- Балкон
- Изменить планировку
Видеобзоры построенных домов
Трудно разобраться? Не беда
Прочитайте наши статьи о технологиях строительства и используемых материалах.
Свяжитесь с нашими специалистами
По телефону +7 (499) 677-52-28
Или закажите обратный звонок














































































