Обзор
Характеристики
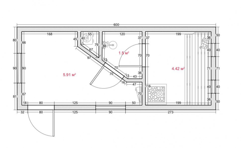
Проект компактной бани в стиле «Афрейм», размеры 6 на 2,25 м, площадь 11 м. кв. Вход с боковой стороны, оформлен как треугольник. Благодаря чему баня органично впишется на участке с домом в аналогичные стили. И при этом имеет обычную прямоугольную конструкцию, без укосов по стенам характерных для Афрейм проектов.
В бане три отделения, комната отдыха 5,9 м2, помывочная 1.5 м2 и парилка 4,4 м2. Бойлер спрятан в специально выгороженную нишу.
Несмотря на скромные размеры, грамотная планировка не создает ощущения тесноты. Все очень уютно, компактно и под рукой. Баня быстро прогревается и хорошо держит температуру. Идеальный вариант для небольшой семьи или компании.
Базовая комплектация включает:
Каркас бани из калиброванной доски хвойных пород 50х100, 50х150. Для стен используется утеплитель Rockwool или Knauf Prof толщиной 100 мм. Утепление пола во влажных зонах (парная, помывочная) - экструдированный пенополистирол 50 мм.
Пароизоляция парной: фольга на крафтбумаге.
Для ветро-/влаго- защиты пленки рулонного типа с проклеиванием швов (наружная супердиффузионная трехслойная паропроницаемая мембрана.
Внешняя отделка сделана из имитации бруса. Выполнено декорирование оконных зон, покраска в два цвета полуматовой кроющей защитой.
Для внутренней отделки используется ЕВРО вагонка хвойных пород, а в парной – осиновая вагонка.
Входная дверь ПВХ 0,8 х 1,9 с много запорным замком и усиленными наружными петлями в белом профиле и с зеркальной тонировкой стеклопакета.
Окна: на лицевом фасаде (в парной и помывочной) панорамный глухой стеклопакет из закаленного стекла 140х50 см с зеркальной пленкой, в парной форточка для проветривания в деревянном профиле 30х40 см; комната отдыха - поворотно-распашное окно 100х100 см на боковом фасаде.
Внутри устанавливаются банные двери из белового матового стекла.
В печь фирмы ASTON 16. В комплекте к печи: дымоход, бак с краном на 55 литров (если нужен) и камни 95 кг. Защита внутри парной – антиогонь.
В парной осиновые полки с прямой укладкой. В помывочной сделана гидроизоляция пола, установлен слив и съемные трапики.
В базовой комплектации устанавливается электрика (щит с автоматами: розетка, выключатель двухклавишный, провод РКГМ в парной, два банных светильника с абажуром в парной, светильник IP54 влагостойкий в помывочной и светильник в комнате отдыха.
- Площадь:11
- Материал:Ель, сосна
- Фундамент:Блочный
- Длина:6 м
- Ширина:2.25 м
Заявка на расчет стоимости
Проект постройки может быть дополнен или изменен по вашему желанию. Заполните заявку на расчет стоимости.
ЗаказатьДобавить в проект
- Гараж
- Террасу
- Крыльцо
- Балкон
- Изменить планировку
Видеобзоры построенных домов
Трудно разобраться? Не беда
Прочитайте наши статьи о технологиях строительства и используемых материалах.
Свяжитесь с нашими специалистами
По телефону +7 (499) 677-52-28
Или закажите обратный звонок












































































