Обзор
Характеристики
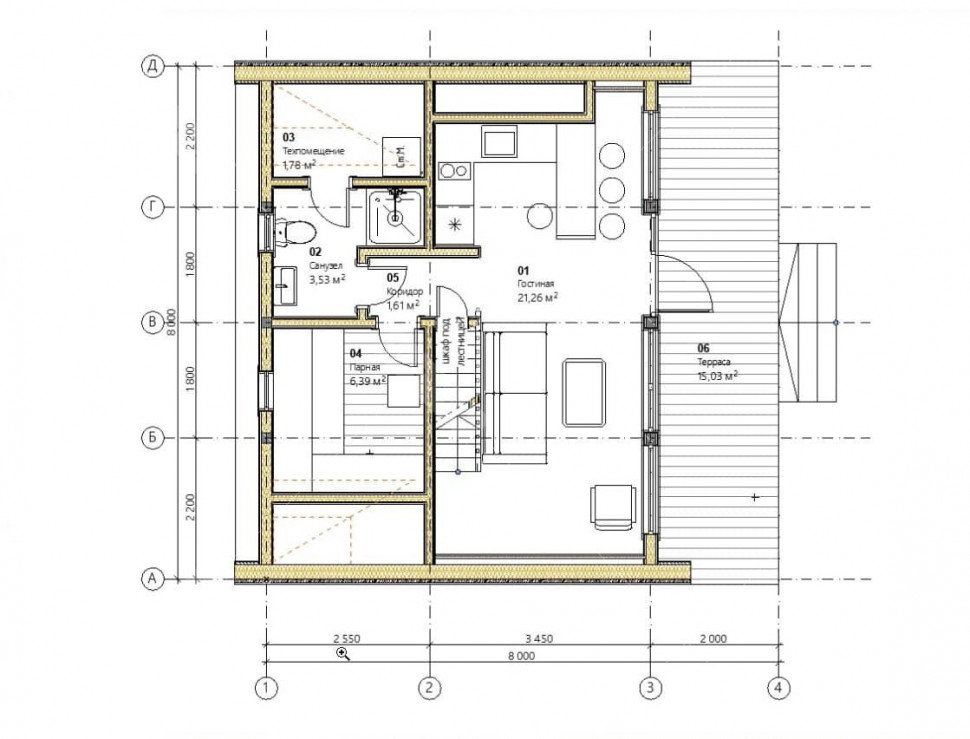
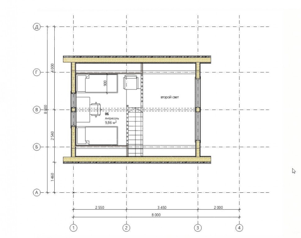
Проект каркасной бани в стиле А-фрейм, габариты 8 на 8 м, площадь 74 м. кв, второй этаж – антресоль. На первом этаже запроектированы гостиная-кухня 21,26 м2, санузел 3,5 метра, техническое помещение 1,8 м. Второй этаж типа антресоль со вторым светом – спальня 9,86 м2. Высота потолков первого этажа составляет 2,4 метра, а второго этажа (при его наличии) – 2,3 метра.
Перед домом расположена просторная открытая терраса 2 на 6 метра (15 м2). Проект универсальный, при минимальных изменениях планировки может стать гостевым или дачным домом. Стеновой каркас утепленный, 15 см. толщиной рассчитан на использование бани в том числе в холодное время года.
Комплектация
Фундамент
(не входит в стоимость, обсчитывается отдельно), свайно-винтовой или ленточный.
Каркас и стены
Вентилируемый фасад, паро- и гидроизоляция. Монтаж силового каркаса производится по технологии перекрестного утепления гарантирует повышенную звукоизоляцию и отсутствие «мостиков холода».
Наружная и внутренняя отделка
Под внешней обшивкой монтируется контробрешетка из бруска для вентиляции фасада. На цоколь и окна устанавливаются крашеные оцинкованные отливы. При желании возможна замена материалов внешней и внутренней отделки на любые другие по желанию заказчика.
Окна
Пластиковые окна c 2-м стеклопакетом и поворотно-откидной фурнитурой. В комплект также входят: ПВХ подоконники шириной 200 мм, москитные сетки и оцинкованные отливы.
Двери
Входная металлическая дверь. Дверь в парное отделение –жаропрочное стекло. Межкомнатные двери – филенчатые с ручками.
Кровля
Металлочерепица из нержавеющей стали толщиной 0,4 мм с 15-летней гарантией качества. Карнизы кровли подшиваются перфорированными панелями. Водосточная система не допускает контакта с осадками, а снегозадержатели не допускают образования сугробов вокруг строения.
Отделка
Потолки первого и второго этажей отделываются сухой обшивочной евровагонкой.
Напольное покрытие - шпунтованная деревянная доска толщиной 27 мм служит идеальным покрытием для пола.
Парное отделение – вагонка из липы.
Печь и комплектующие
Печь в стоимость не входит, рассчитывается индивидуально.
- Площадь:74
- Этажность:1,5
- Материал:Каркасный
- Длина:8 м
- Ширина:8 м
- Фундамент:Винтовой
Заявка на расчет стоимости
Проект постройки может быть дополнен или изменен по вашему желанию. Заполните заявку на расчет стоимости.
ЗаказатьДобавить в проект
- Гараж
- Террасу
- Крыльцо
- Балкон
- Изменить планировку
Видеобзоры построенных домов
Трудно разобраться? Не беда
Прочитайте наши статьи о технологиях строительства и используемых материалах.
Свяжитесь с нашими специалистами
По телефону +7 (499) 677-52-28
Или закажите обратный звонок












































































